Espectacular adosado en Campo Mijas.
Ubicado en una urbanización con piscina, pista de tenis y maravillosos jardines, esta propiedad ofrece lo mejor de Campo Mijas: comodidad, privacidad y espacios al aire libre para toda la familia.
Se trata de un adosado de 2 plantas con orientación suroeste, que disfruta de vistas espectaculares a la montaña y al mar. La terraza trasera, con acceso desde la cocina, cuenta con una estupenda barbacoa, mientras que la terraza principal del salón es perfecta para relajarse y disfrutar del sol y los atardeceres.
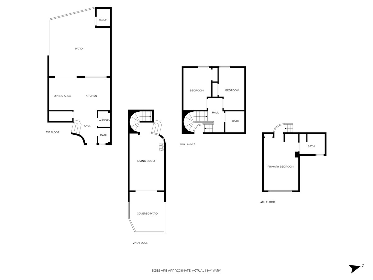
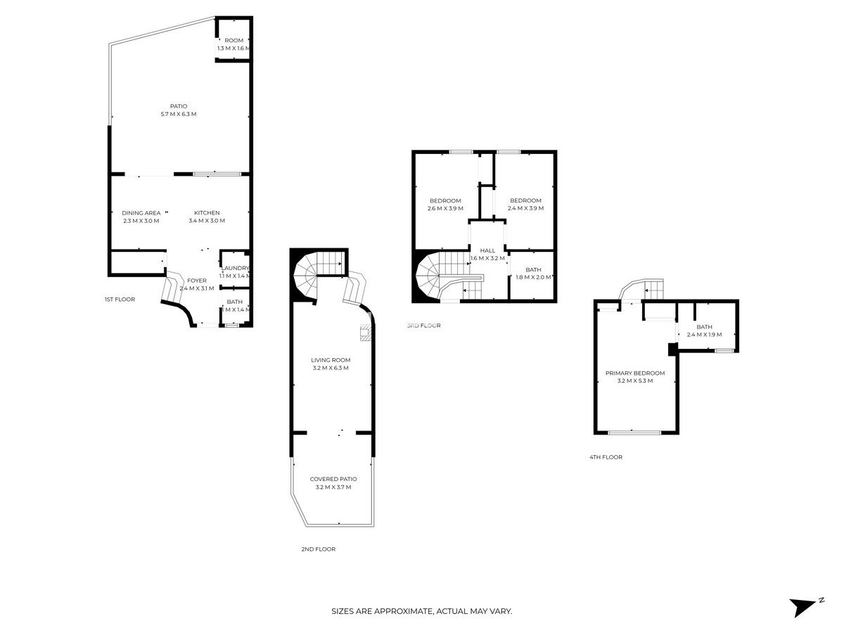
Planta baja: Cocina abierta con comedor, salón con doble altura, aseo, habitación con termo eléctrico, zona de lavandería y varios espacios de almacenamiento.
Primera planta: Tres dormitorios, incluido el principal con baño en suite, y un baño común para el resto de habitaciones.
Además, dispone de garaje con acceso directo a la vivienda, que aporta comodidad extra en el día a día.
Parada de bus a 1 minuto, playas de Los Boliches y Cala de Mijas a 10 minutos en coche, colegios, supermercados y centros comerciales a 6-7 minutos, y parques cercanos.
Una propiedad única que combina vistas, confort y ubicación, ideal para quienes buscan un hogar completo en la Costa del Sol.








































































