A tan solo 500 metros del mar y con excelente conexión por tren de cercanías, presentamos Mirador del Limonar, un proyecto que combina diseño, luminosidad, materiales de primer nivel y las mejores vistas al mar de la zona.
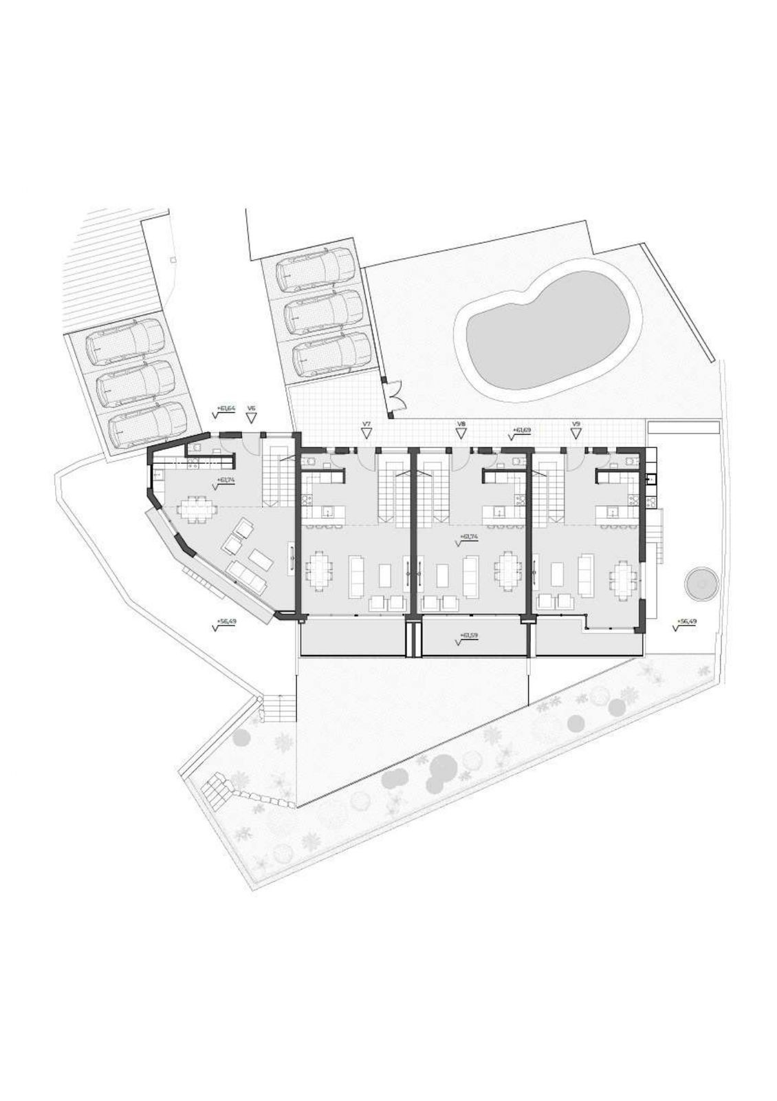
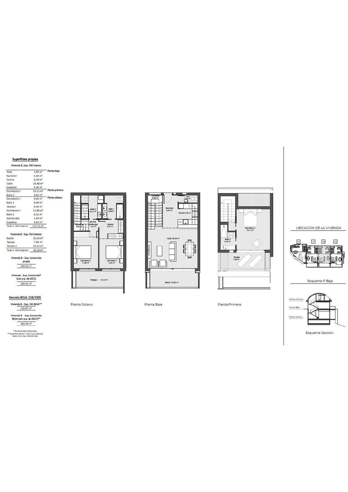
Cada vivienda se desarrolla en tres plantas, todas con orientación sur, lo que garantiza luz natural durante todo el día. Disponen de 3 dormitorios, 3 baños completos, 1 aseo, amplias terrazas y jardín privado.
– Fachada con sistema de aislamiento térmico SATE que asegura confort y eficiencia energética.
– Carpintería exterior de aluminio con rotura de puente térmico y doble acristalamiento, para un perfecto aislamiento acústico y climático.
– Climatización por conductos (frío/calor) en salón y dormitorios.
– Sistema de aerotermia para agua caliente sanitaria, eficiente y sostenible.
– Cocinas totalmente amuebladas y equipadas con electrodomésticos de primeras marcas.
– Baños modernos con platos de ducha de resina y griferías termostáticas.
– Puerta de entrada blindada, armarios modulares y suelos porcelánicos de gran formato.
– Control domótico para persianas y estores a través de conexión WiFi.
– La comunidad ofrece zona ajardinada, piscina comunitaria y plaza de aparcamiento privada para cada vivienda.
Entrega prevista: octubre de 2025.
Una oportunidad única de vivir en una vivienda de calidad, con las mejores vistas al mar, en un entorno tranquilo, cerca de la playa y con todos los servicios a mano.




























