Impresionante Casa Adosada de 4 Dormitorios en Venta en Benalmádena – ¡Confort Moderno y Ubicación Privilegiada!
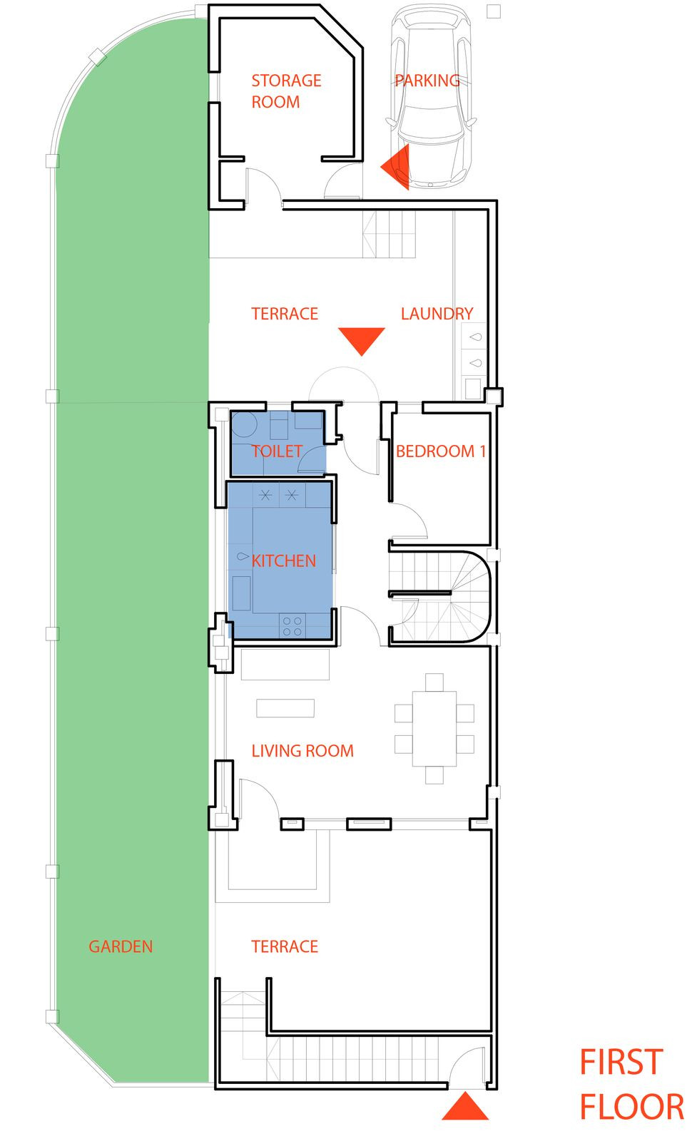
Descubre esta preciosa casa adosada completamente reformada que ofrece 4 amplios dormitorios, 3 baños, un salón luminoso y una cocina moderna.
Disfruta del sol durante todo el día con dos amplias terrazas (50 m² en total) orientadas al este y al oeste, además de un jardín privado (48 m²) con zona de juegos (27 m²), lavadero, trastero independiente y aparcamiento privado.
La vivienda está equipada con ventanas de triple acristalamiento, aislamiento térmico de alta calidad en paredes exteriores, pérgola bioclimática con iluminación LED, suelos de cerámica y madera, y armarios empotrados.
Ubicación inmejorable, a pocos pasos del transporte público, colegios, supermercados y con fácil acceso a la autopista — ¡un hogar perfecto para familias en una zona excepcional!
** Posibilidad de ampliar con una unidad independiente en el sótano de aproximadamente 60 m² **
Características Técnicas
Ventanas: Sistema EUROFUTUR de KÖMMERLING, vidrio tipo PL ULTRA N 4/20/6 mm.
Pérgola Bioclimática: 8×4 m, estructura reforzada, iluminación LED, marca Solisysteme.
Toldo en Terraza Delantera: Marca alemana Markilux.
Aislamiento de Paredes Exteriores: Lana mineral Supafil 034 (aislamiento por insuflado) que ofrece:
Excelente confort térmico, elimina el efecto de pared fría y garantiza una temperatura interior uniforme.
Mayor aislamiento acústico para reducir el ruido.
Material ecológico, ayuda a reducir las emisiones de CO₂.
Resistente a la humedad, hidrófugo y no higroscópico.
No sirve de soporte para el desarrollo de hongos ni bacterias.
Nota Legal
De acuerdo con el Decreto 218/2005 sobre información al consumidor en la compraventa y arrendamiento de viviendas en Andalucía: los gastos notariales, registrales, impuesto de transmisiones patrimoniales (ITP), honorarios financieros y otros gastos inherentes a la compraventa no están incluidos en el precio indicado.










































