Casa pareada con piscina en Guadalmina Alta. Esta casa pareada ha sido reformada con materiales de primer nivel, combinando influencias del estilo balinés y mediterráneo. Destaca por su luminosidad, armonía y diseño funcional, ofreciendo una atmósfera cálida y serena.
Un auténtico paraíso para quienes aprecian la arquitectura, el interiorismo y la energía del feng shui.
La piscina privada, climatizada y de agua salada, permite disfrutarla durante todo el año, convirtiéndose en el corazón del hogar.
El sistema de aerotermia integral ofrece climatización eficiente en cada estancia, adaptable a las necesidades de cada momento. Perfecta para los días más fríos y húmedos de la costa: nada como la sensación de caminar descalzo por toda la casa en pleno invierno.
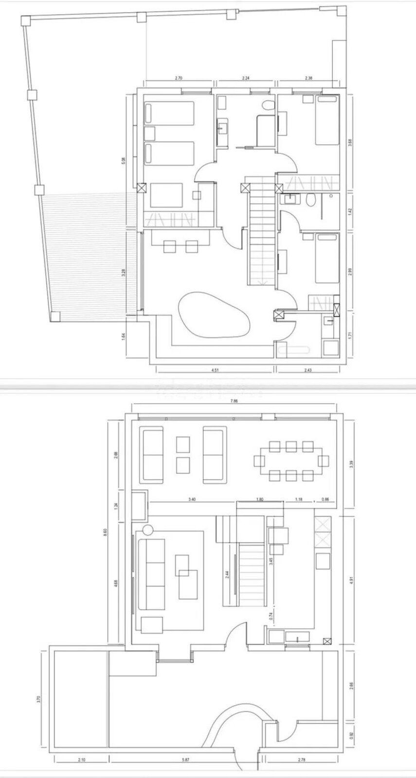
Distribución de la vivienda
La propiedad se distribuye en tres niveles: principal, superior y planta baja, con una superficie total construida de 282,98 m².
Planta principal — 138,55 m²
Superficie interior: 67,10 m²
Amplio salón-comedor con vistas a La Concha, muy luminoso gracias a su techo parcialmente acristalado. Acceso directo a la terraza a través de una moderna puerta corredera de tres hojas, que se abre completamente a ras de suelo. Incluye armarios empotrados para almacenamiento.
Cocina de diseño en madera de roble, hecha a medida y equipada con electrodomésticos de alta gama (Haier, Siemens y Bosch). Encimera Dekton y grifería de estilo icónico que se mantiene en toda la vivienda.
Superficie exterior: 71,45 m²
Patio de entrada con acabado en microcemento, zona de estar soleada todo el día, jardineras y ducha exterior con agua caliente y fría.
Baño completo ideal para uso exterior o de piscina.
Piscina climatizada de agua salada (3,70 x 3,75 m) con cubierta para el invierno.
Pérgola de madera con zona chill-out y espectaculares vistas a La Concha.
Planta primera — 43,17 m²
Superficie interior: 25,25 m²
Dormitorio principal con vistas abiertas a La Concha. Base de cama de microcemento y cama doble de 200×200 cm con tomas eléctricas integradas. Persianas eléctricas y ventanas con doble acristalamiento. Armarios empotrados de roble.
Baño principal con lavabo doble, amplios armarios y una elegante zona de aguas con ducha y bañera exenta.
Superficie exterior: 17,92 m²
Terraza ideal para tomar el sol o disfrutar de las noches estrelladas, equipada con ducha de agua caliente y fría. Posibilidad de cerramiento.
Planta baja — 101,26 m²
Superficie interior: 67,10 m²
Dormitorio con armarios empotrados y baño en suite con ducha.
Segunda habitación con tres camas individuales, tres armarios empotrados y baño completo con bañera.
Tercer dormitorio de gran tamaño (resultado de unir dos habitaciones), actualmente usado como cuarto de juegos, con ocho armarios empotrados y salida directa al porche.
Lavadero independiente con lavadora, secadora Haier y espacio de almacenamiento. Todos los baños y la lavandería disponen de radiadores secatoallas.
Superficie exterior: 39,20 m²
Porche cubierto con zona ajardinada de césped artificial premium y espacio de garaje, actualmente utilizado como rampa de skate.
Otros detalles
Ideal para familias o quienes deseen recibir invitados sin renunciar a la privacidad. La vivienda cuenta con vado, aparcamiento en la puerta y garaje.
Ubicada frente al Club de Golf Guadalmina, en una zona muy tranquila, a pocos minutos de todos los servicios.












































































