Le presentamos esta preciosa vivienda, ubicada en pleno centro de Fuengirola, una joya rehabilitada con esmero y respeto por su origen histórico. La propiedad conserva elementos originales que aportan carácter y exclusividad, como su encantador patio sevillano y rejas con más de 150 años, restauradas con precisión, además de un artesonado de madera tallada en la parte superior del patio, diseñado especialmente para esta vivienda.
Situada en una calle semi peatonal a tan solo 200 metros de la playa, esta casa combina la tranquilidad necesaria para disfrutar de su entorno sin renunciar a la proximidad a toda la zona de ocio, bares y comercios del centro. La calidad constructiva es de lujo, visible a simple vista en cada rincón.
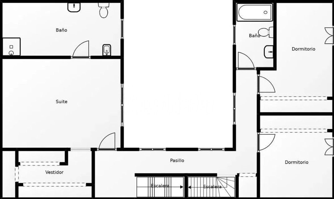
La vivienda cuenta con cinco dormitorios amplios, todos equipados con armarios empotrados y sistemas de climatización. Dispone además de tres baños completos, un aseo adicional y un lavadero. El salón comedor, con una superficie de 40 m², destaca por su chimenea centenaria en perfecto estado de funcionamiento y sus grandes ventanales que permiten una abundante entrada de luz natural. Desde el salón se accede mediante puertas imitación madera a un hermoso patio central estilo sevillano que aporta luminosidad y serenidad a toda la vivienda.
La cocina, diseñada en madera de roble, está completamente equipada con encimera y fregadero de mármol de Macael. Todas las habitaciones presentan suelos radiante con baldosas decorativas al estilo sevillano y ventanas oscilobatientes con cristales Climalit y sistema de seguridad.
En la segunda planta se encuentra una terraza ideal para disfrutar del clima mediterráneo, además de un espacio destinado al almacenamiento. El dormitorio principal dispone de un elegante vestidor en madera de caoba y un baño en suite equipado con ducha y bañera de hidromasaje.
Las puertas macizas de caoba con dinteles diseñados a medida aportan distinción adicional. La escalera interior, realizada en madera, ha sido tallada a mano para ofrecer un acabado único lleno de detalles artesanales.
Toda la propiedad refleja un nivel excepcional en acabados y detalles que generan una sensación constante de bienestar y confort. La vivienda cuenta actualmente con licencia vacacional y está sujeta a inventario disponible.
Además, con su estructura actual, existe la posibilidad de poder ampliar la vivienda, por lo que ofrece un mayor abanico de posibilidades con este emblemático edificio.
Para más información o concertar una visita, no dude en contactarnos. Esta es una oportunidad única para adquirir una casa histórica con todas las comodidades modernas en uno de los enclaves más privilegiados de Fuengirola.


































































