¡A 100 METROS DE LA PLAYA – APARTAMENTO DÚPLEX CON VISTAS AL MAR EN CALAHONDA BEACH CON LICENCIA TURÍSTICA!
Este exclusivo y elegante apartamento en planta baja, con 2 dormitorios y 2 baños, ofrece unas impresionantes vistas al mar y una ubicación inmejorable, a solo 2 minutos a pie de la playa.
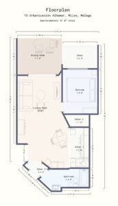
Situado en el nivel -1 del semisótano, el apartamento está cuidadosamente distribuido en dos plantas, combinando estilo y funcionalidad para un estilo de vida costero moderno.
En la planta principal encontrarás un salón luminoso y espacioso, una cocina de concepto abierto, un dormitorio amplio y un baño recientemente renovado. Sal a la terraza privada para disfrutar de vistas panorámicas al mar, perfectas para relajarte o recibir invitados.
El nivel inferior cuenta con otro dormitorio amplio con baño en suite, una acogedora sala de estar y espacio adicional ideal para familiares o invitados. Ambos baños han sido renovados recientemente, y el apartamento está completamente amueblado con muebles de buen gusto.
El estacionamiento nunca será un problema, ya que hay amplias plazas disponibles para residentes y visitantes. La propiedad incluye una licencia turística y tiene LPO, lo que la convierte en una excelente oportunidad de inversión para alquileres vacacionales.
Con una ubicación conveniente cerca de todas las comodidades esenciales, como centros comerciales, restaurantes, pistas de tenis y campos de golf, esta propiedad también está a pocos pasos de la A7 y una parada de autobús, facilitando el transporte.
No pierda esta oportunidad única de adquirir un hermoso hogar junto al mar en el corazón de Calahonda Beach. ¡Contáctenos hoy mismo para concertar una visita!
SIN ASCENSOR
Actualmente en las escrituras la propiedad tiene 1 dormitorio 1 baño, el sótano no está incluido en las escrituras.
Este edificio cuenta con la LPO
Licencia turística disponible
SE PERMITEN ALQUILERES DE CORTA TEMPORADA EN ESTA COMUNIDAD.
LOS APARTAMENTOS DE ALQUILER TURÍSTICO TIENEN UN INCREMENTO DEL 20% EN LAS GASTOS DE COMUNIDAD.
Apartamento Planta Baja, Calahonda, Costa del Sol.
2 Dormitorios, 2 Baños, Construidos 70 m², Terraza 10 m².
Posición : Ciudad, Lado de la Playa, Cerca de Golf, Cerca de Puerto, Cerca de Tiendas, Cerca del Mar, Cerca de Colegios, Cerca de Marina, Urbanización.
Orientación : Sur.
Estado : Buen.
Climatización : Aire Acondicionado, A/A Caliente, A/A Frio.
Vistas : Mar, Playa, Panorámicas, Jardín, Urbanas.
Caracteristicas : Terraza Cubierta, Cerca de Transporte, Terraza Privada.
Muebles : Amueblada.
Cocina : Equipada.
Seguridad : Portero Automático.
Aparcamiento : Libre, Comunitario.
Servicios Públicos : Electricidad, Agua Potable.
Categoría : Ganga, Barato, Casas de vacaciónes, Inversion, Reventa.












































































































