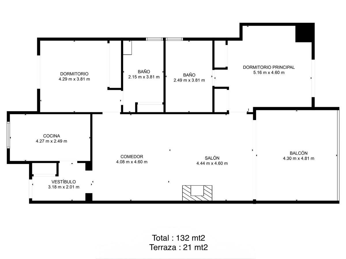
Novedad en el mercado!Vistas abiertas al mar y Marbella desde el salónApartamento en Monte Halcones – BenahavísDescubre este impresionante apartamento donde lo primero que verás al entrar es el mar.El salón se abre de frente a una gran terraza orientada al sur, con vistas panorámicas infinitas al Mediterráneo y al perfil de Marbella. Un espacio donde el azul del mar se convierte en parte de tu día a día.Con 133 m² interiores y 23 m² de terraza, esta vivienda ofrece amplitud, luz natural y una distribución muy versátil. Dispone de un gran salón, dos dormitorios con baños en suite, armarios empotrados y una cocina independiente que puede abrirse al salón o convertirse en una tercera habitación o despacho.Situado en una de las zonas más exclusivas y tranquilas de Benahavís, dentro de una urbanización con jardines cuidados, dos piscinas y aparcamiento comunitario.Además, la propiedad cuenta con renders que muestran cómo podría quedar tras una reforma, ayudándote a visualizar todo su potencial.Una propiedad única con vistas que enamoran.Ideal como residencia principal o segunda vivienda en la Costa del Sol.Tiene a su disposición el documento informativo abreviado. Gastos: Impuestos (ITP o IVA+AJD) + Gastos notariales y registrales.ERE






















































































