Apartamento de 2 Dormitorios con Vistas Panorámicas al Mar y Potencial de Conversión a 3 Dormitorios – Puerto del Almendro, Los Arqueros
Situado en una posición elevada dentro de la exclusiva urbanización Puerto del Almendro, en Los Arqueros, este luminoso apartamento de dos dormitorios disfruta de impresionantes vistas panorámicas al mar que se extienden a lo largo de la costa mediterránea. La urbanización es conocida por sus preciosos jardines comunitarios y una de las zonas de piscina más bonitas de la zona, con espectaculares vistas al mar y un ambiente tranquilo y cuidado.
En el interior, la vivienda está llena de luz natural y ofrece una distribución cómoda lista para entrar a vivir, aunque también presenta una excelente oportunidad de reforma para aquellos compradores que deseen personalizar el espacio a su gusto.
La propiedad dispone de:
✔ 2 amplios dormitorios
✔ 2 baños en suite
✔ Luminoso salón-comedor
✔ Cocina totalmente equipada
✔ Aire acondicionado (frío y calor)
✔ Dos terrazas privadas independientes, cada una con una orientación diferente y espectaculares vistas al mar
✔ Acceso sin escalones, lo que aporta mayor comodidad y accesibilidad
Las dos terrazas son uno de los grandes atractivos de la propiedad, permitiendo disfrutar del sol durante todo el día mientras se contemplan las ininterrumpidas vistas al mar desde distintas perspectivas.
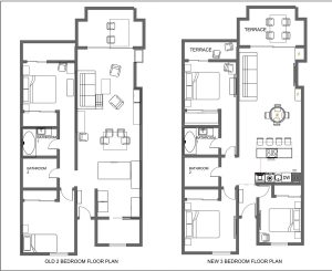
Además de ser una vivienda cómoda en su estado actual, el apartamento también ofrece gran potencial de reforma y redistribución. Con una renovación adecuada, la propiedad puede convertirse en un apartamento de 3 dormitorios, lo que aumentaría su valor y funcionalidad. En la galería de fotos se incluyen planos conceptuales que muestran esta posible conversión a tres dormitorios.
Ubicado a pocos minutos de San Pedro de Alcántara, Puerto Banús, campos de golf, colegios internacionales y todo tipo de servicios, este apartamento ofrece el equilibrio perfecto entre tranquilidad y cercanía a todas las comodidades.
Ya sea como:
✔ Residencia habitual
✔ Segunda vivienda de lujo
✔ Proyecto de reforma con gran potencial de revalorización
✔ Inversión con alta demanda en Benahavís
esta propiedad representa una oportunidad única de adquirir un apartamento con vistas al mar en una de las urbanizaciones cerradas más deseadas de la Costa del Sol.












































































