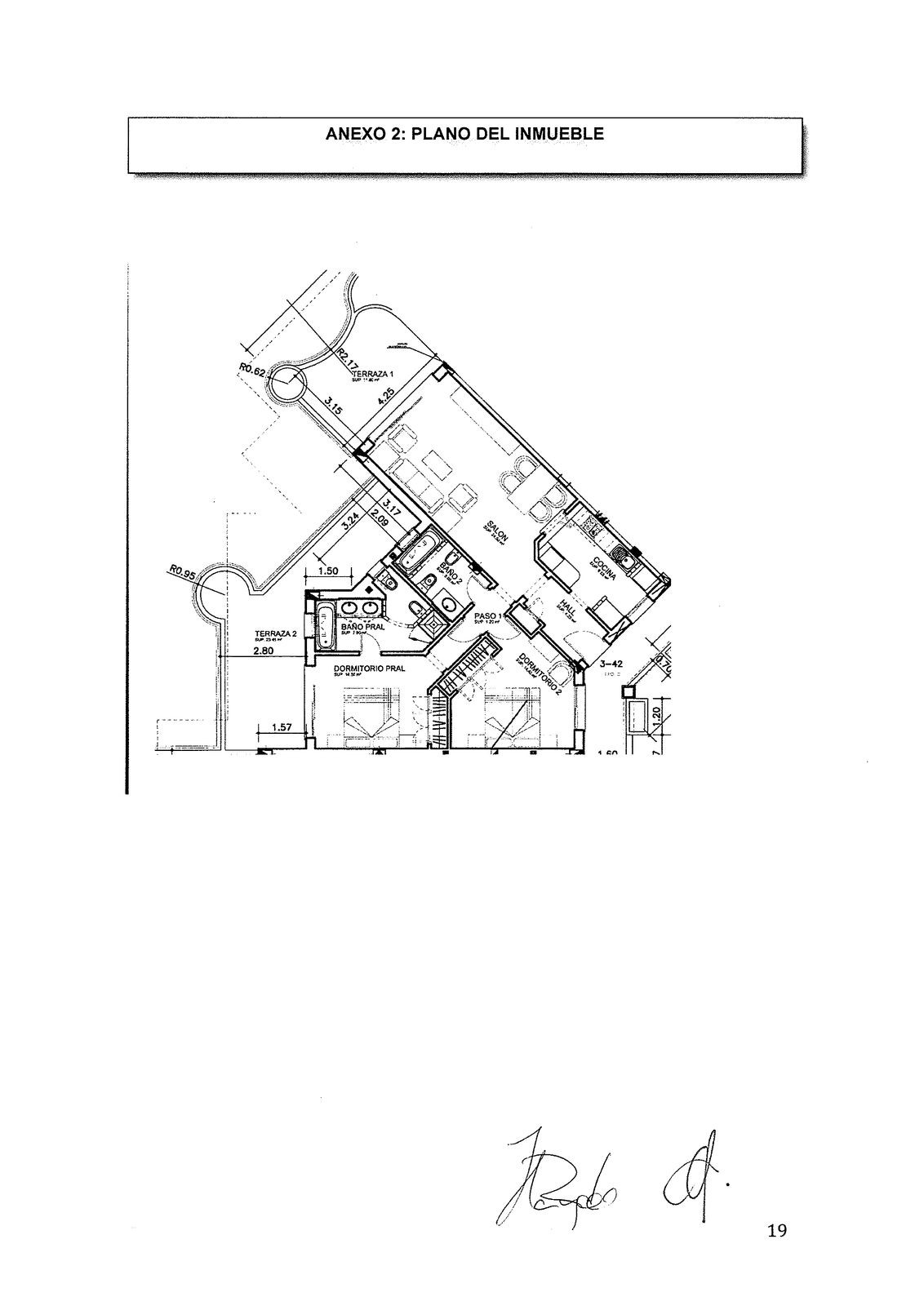
Elegante Apartamento de 2 Dormitorios con Vistas al Mar en Aloha Hill Club
Ubicado en el prestigioso Aloha Hill Club, este apartamento bellamente diseñado ofrece una residencia cómoda y elegante, con impresionantes vistas y una excelente orientación. Con 101 m² de espacio interior y 20 m² de terrazas, cada elemento de la distribución está pensado para maximizar la luz, el espacio y las vistas al mar.
Características y Destacados
• 2 dormitorios, 2 baños — una distribución funcional y elegante, ideal para parejas, familias pequeñas o como refugio de lujo
• Orientación sureste, que garantiza sol desde la mañana hasta primeras horas de la tarde, perfecto para interiores luminosos y cálidos
• Terrazas (20 m² en total) con vistas al mar — ideales para relajarse, cenar al aire libre o simplemente disfrutar del panorama costero
• Amplia superficie interior (101 m²), con espacios de vida abiertos, luminosos y un diseño bien proporcionado
• Comunidad cerrada Aloha Hill Club, reconocida por su alto nivel, exuberantes jardines y ambiente tranquilo
• Cercanía a todos los servicios — en una ubicación privilegiada que combina tranquilidad con fácil acceso a tiendas, restaurantes y actividades de ocio en la costa














































