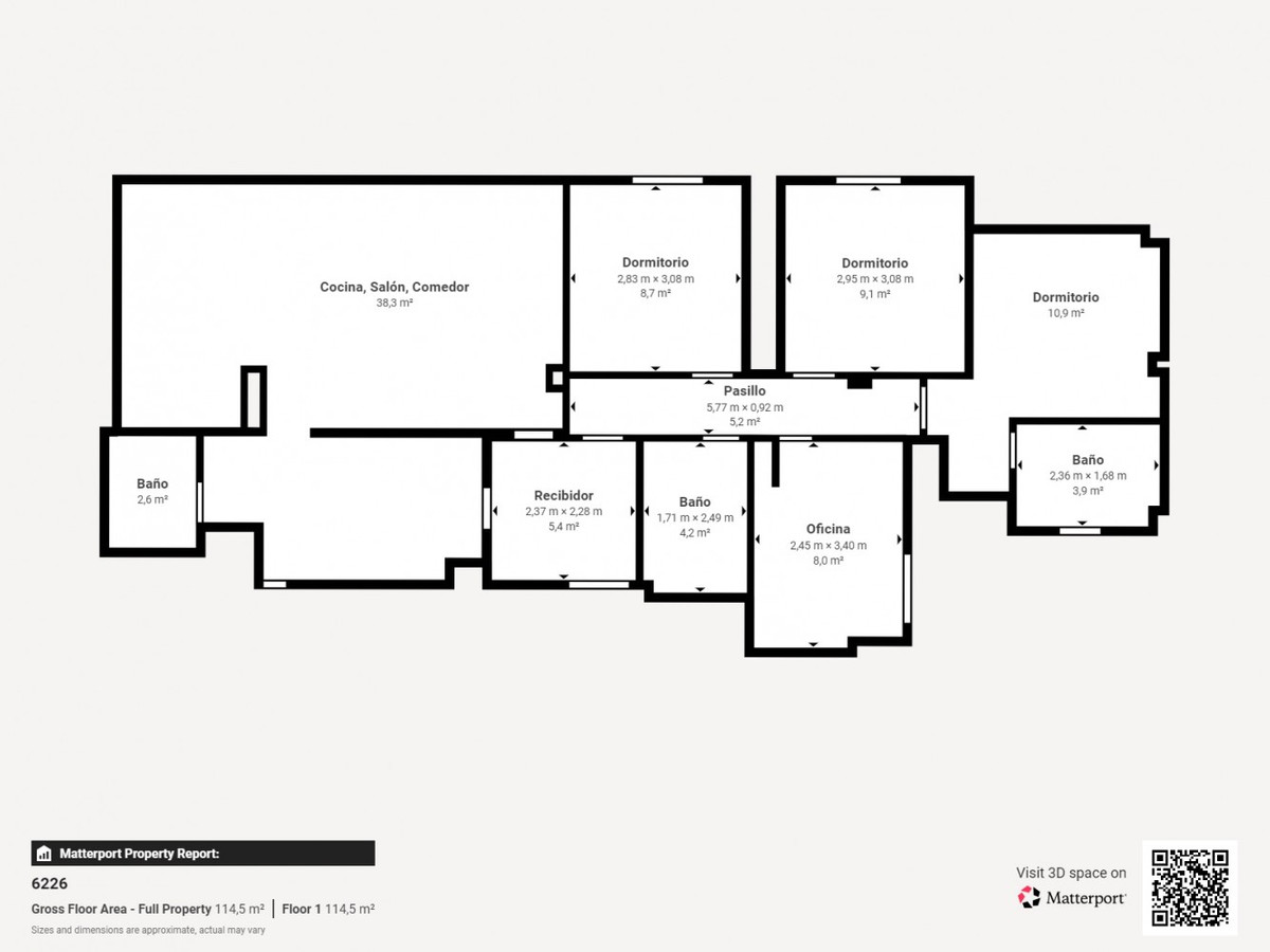
Descubre el encanto del Mediterráneo y la comodidad de una vida tranquila en esta preciosa vivienda de una sola planta, situada en la codiciada localidad costera de Torre del Mar. Un hogar que combina a la perfección espacio, luz y funcionalidad, reflejando el auténtico estilo de vida de la Costa del Sol. Con 115 m2 construidos y 96 m2 útiles, la casa ofrece un diseño luminoso y diáfano que conecta de forma natural las zonas interiores con las exteriores. El salón y el comedor están llenos de luz natural y se abren directamente a la espectacular terraza de 103 m2, el verdadero corazón de la vivienda, ideal para comidas al aire libre, tomar el sol o disfrutar de la tranquilidad del entorno. La propiedad cuenta con cuatro dormitorios, uno de ellos actualmente utilizado como despacho un espacio versátil perfecto para invitados, teletrabajo o aficiones. El dormitorio principal tiene acceso a una terraza privada, un rincón de calma para empezar o terminar el día. Dispone de dos baños, bien distribuidos y funcionales, que ofrecen comodidad y practicidad en el día a día. Además, la vivienda incluye una plaza de aparcamiento subterráneo y un trastero privado, aportando comodidad y espacio adicional. Grandes ventanales, interiores luminosos y detalles cuidados crean una atmósfera acogedora y serena. Tanto si buscas una residencia permanente como una casa de vacaciones, esta propiedad ofrece una base sólida con gran potencial lista para entrar a vivir, pero con margen para personalizarla a tu gusto. Disfruta del sol andaluz, del encanto de Torre del Mar y del estilo de vida mediterráneo más auténtico todo ello realzado por una magnífica terraza de 103 m2 diseñada para disfrutar plenamente del aire libre.














































