Descubre este magnífico apartamento de reciente construcción, ubicado en la prestigiosa zona de Las Mesas, Estepona. Diseñado para combinar confort, modernidad y un estilo de vida privilegiado, esta propiedad es ideal para quienes buscan disfrutar de lo mejor de Estepona y de la Costa del Sol.
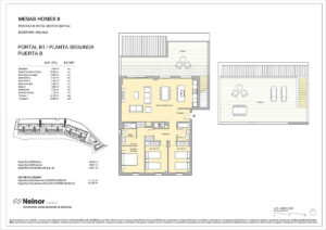
El apartamento cuenta con 3 dormitorios y 2 baños (uno de ellos en suite), con acabados modernos y de alta calidad. Su cocina de concepto abierto conecta perfectamente con el espacioso salón-comedor, creando un ambiente luminoso y funcional que da acceso directo a la terraza. Además, destaca un impresionante solárium privado de 58 m² con vistas panorámicas, ideal para relajarse, recibir invitados o simplemente disfrutar del maravilloso clima mediterráneo.
La propiedad incluye un trastero y una plaza de garaje.
El residencial cuenta con agradables zonas comunes que incluyen un gimnasio equipado, jardines bien cuidados y una piscina comunitaria, ofreciendo un espacio perfecto para disfrutar en familia y con amigos.
Situado en una zona privilegiada con fácil acceso a las principales vías de comunicación, este apartamento le permite disfrutar de todo lo que la Costa del Sol tiene para ofrecer. Marbella y Puerto Banús, conocidos por su glamour y oferta de ocio, se encuentran a menos de 20 minutos en coche, al igual que reconocidos campos de golf y centros comerciales. Además, está a pocos minutos de la playa, el centro de Estepona y su encantador puerto deportivo.




























































































