Descubre un lujo incomparable en este exclusivo ático dúplex de obra nueva con solárium privado y vistas panorámicas impresionantes, ubicado en la Calle Policía Nacional, en el vibrante barrio de Parque Central de Estepona, en la soleada Costa del Sol. Esta joya en esquina, con orientación sur-oeste privilegiada, inunda cada estancia de luz natural mientras ofrece vistas inigualables al mar Mediterráneo centelleante, las majestuosas montañas de Sierra Bermeja y la animada ciudad. Situado en una de las zonas más codiciadas de Estepona —conocida cariñosamente como el 'Jardín de la Costa del Sol'— combina perfectamente tranquilidad con comodidad urbana, a solo un corto paseo de colegios de primer nivel, supermercados, centros de salud, instalaciones deportivas y acceso rápido al casco antiguo histórico, playas doradas como la Playa de la Rada (a solo 700-900 metros), y el bullicioso Puerto Deportivo con su variedad de restaurantes y opciones de ocio. La inminente finalización de un velódromo olímpico de vanguardia y un complejo multideportivo —incluyendo instalaciones de rugby, fútbol y ciclismo en un parque periurbano de 20.000 m² para mediados de 2026— augura una notable revalorización y mayor dinamismo comunitario, convirtiéndolo en una inversión astuta en un enclave en auge.
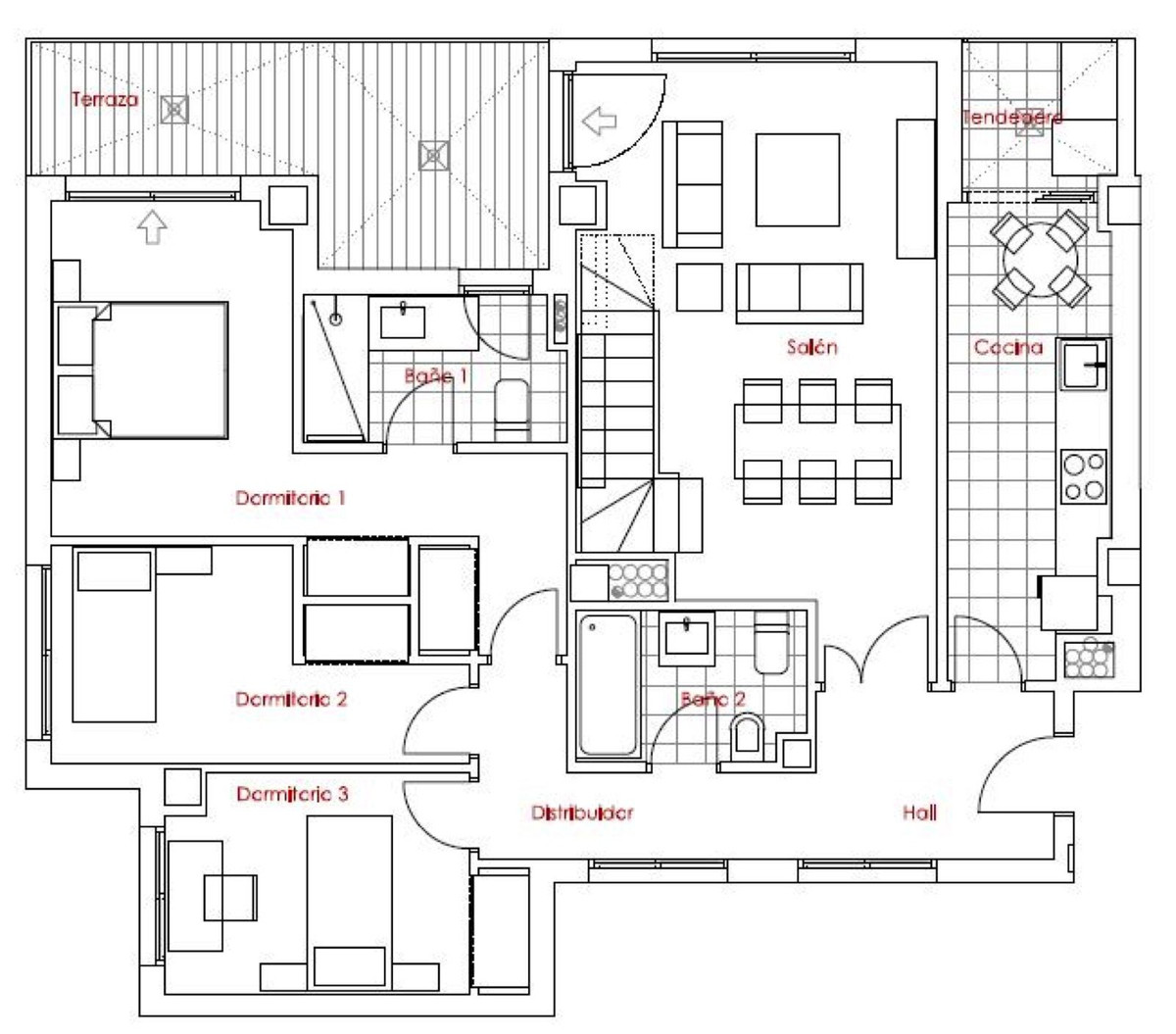
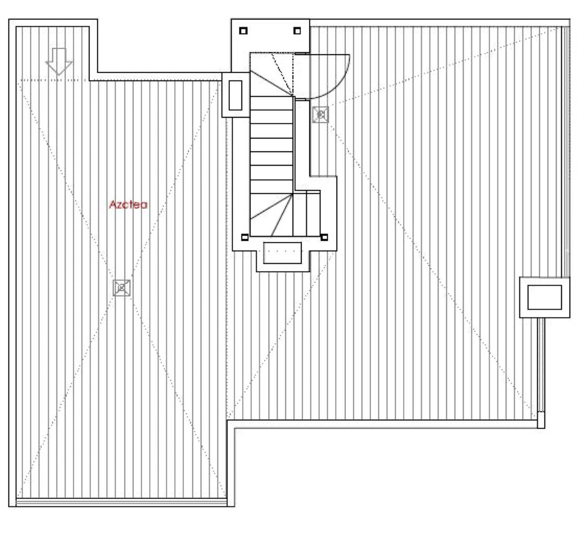
Con 180 m² de espacio impecablemente diseñado en dos niveles en la séptima planta, el nivel principal cuenta con un amplio salón-comedor que se conecta a una terraza semitechada, ideal para disfrutar del clima mediterráneo con vistas despejadas. La cocina independiente, contemporánea y equipada con electrodomésticos de alta gama, incluye un lavadero exterior práctico. La zona de descanso ofrece tres dormitorios generosos —dos dobles, con el principal beneficiándose de un baño en suite— más un segundo baño completo, garantizando comodidad y privacidad para familias o invitados. El auténtico destaque es el solárium privado de 70 m² en la azotea: un refugio exclusivo para relajarse, organizar encuentros o saborear atardeceres espectaculares sobre la costa.
Construido con estándares excepcionales, destacan los suelos laminados, climatización central por aerotermia para calefacción y aire acondicionado eficiente, doble acristalamiento y aislamiento térmico y acústico superior para confort todo el año. La accesibilidad se ha considerado con entrada exterior sin escalones para personas con movilidad reducida y ascensor para un acceso sin esfuerzo. La propiedad incluye una plaza de garaje generosa para coche y moto, junto a un trastero privado. Los residentes disfrutan de una piscina comunitaria en la azotea con vistas abiertas, jardines exuberantes y un entorno sereno, todo dentro de la promoción boutique Ayre Homes —una colección de solo 62 viviendas modernas de dos y tres dormitorios.
Este ático moderno, luminoso y exclusivo encarna la sofisticación, diseñado para quienes buscan calidad premium, comodidad sin esfuerzo y el estilo de vida definitivo en la Costa del Sol en un área familiar y emergente. Tu retiro soñado te espera —consulta hoy para asegurar esta oportunidad única.


















































