Se vende fantástico ático dúplex ubicado en una de las zonas más demandadas de Arroyo de la Miel, justo al lado del Parque de la Paloma.
Situado en una 4ª planta con ascensor, esta propiedad destaca por sus espacios exteriores y su excelente comunicación.
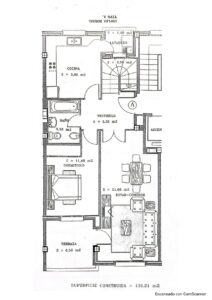
Características Principales: Nivel inferior: Amplio salón-comedor de 22m2 con acceso directo a terraza de 6,60 m² con orientación sureste. Cocina independiente con lavadero anexo. 1 dormitorio 1 Baño completo.
Nivel superior: 3 Dormitorios . 1 Baño completo. 2 terrazas
El precio incluye plaza de garaje y trastero, un valor añadido imprescindible en la zona.
Extras y Zonas Comunes: La propiedad se encuentra en un recinto cerrado que ofrece jardines y piscina comunitaria.
Ubicación Estratégica: Ubicado en un entorno tranquilo pero con todos los servicios a mano
Transporte: A 700m de la estación de Cercanías Renfe (conexión directa con Málaga y el Aeropuerto).
Playa: A solo 1 km (10-12 minutos andando).
Entorno: Colegios, supermercados, restaurantes, Parque de la Paloma, Playa.
Una inversión segura tanto para vivienda habitual como para rentabilizar. Contacta para organizar una visita.



















































































