Magnífica parcela en la exclusiva urbanización Loma del Flamenco (Mijas Golf), a solo 5 minutos de El Esparragal. La urbanización con calles, rotondas y servicios.
La Mayor Ventaja Competitiva: Olvídese de la frustración y la incertidumbre de las licencias. Este terreno se vende con la Licencia de Obra Municipal ya concedida (ICIO pagado – 5.000€) y un proyecto básico aprobado.
¡El comprador puede empezar a construir de inmediato!
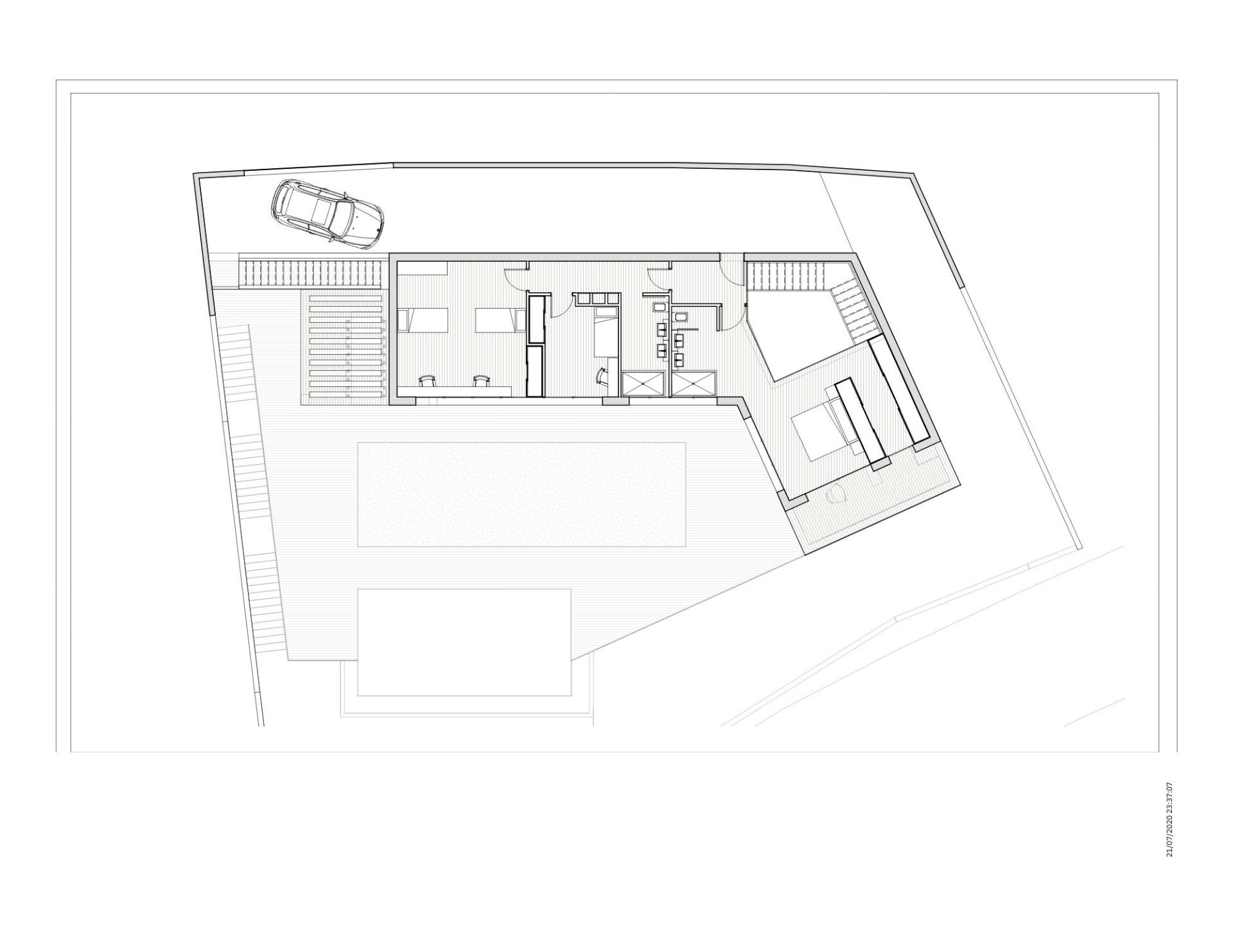
DETALLES DEL PROYECTO APROBADO (Vivienda Unifamiliar):
La vivienda proyectada es moderna y funcional, con dos niveles ordenados en torno a un patio lateral que proporciona iluminación y ventilación.
Vistas Insuperables: La casa y la piscina aprobada están diseñadas para aprovechar las increíbles vistas abiertas a las imponentes Sierras de Mijas y las espectaculares vistas al mar desde la planta alta.
Distribución:
Nivel Acceso/Día: Salón, cocina/comedor, aseo, patio interior y despacho.
Nivel Noche: Dormitorio principal con baño en suite y vestidor, más dos dormitorios secundarios y baño.
Beneficios Adicionales Incluidos: PISCINA APROBADA en proyecto (lista para ejecutar).
Proyecto Básico Aprobado (posibilidad de matices con el arquitecto).
Al corriente de todas las cargas urbanísticas (disponibilidad de certificado de libre deuda).
Ideal para: Particulares que desean construir su hogar sin esperas burocráticas o pequeños promotores que necesitan iniciar la obra con urgencia.
Documentación disponible para el inversor/comprador: Nota Simple, Informe de Tasación, Planos y Certificado de Licencia.
¡Es el momento de empezar a construir, no de esperar!















