Magnífica oportunidad de inversión en Fuengirola, con ubicación prime a solo 150 metros del mar, muy cerca del Puerto Deportivo y playa de la T.
Se vende el bloque completo (no por unidades), ideal para promotores o inversores que busquen un proyecto de alta rentabilidad.
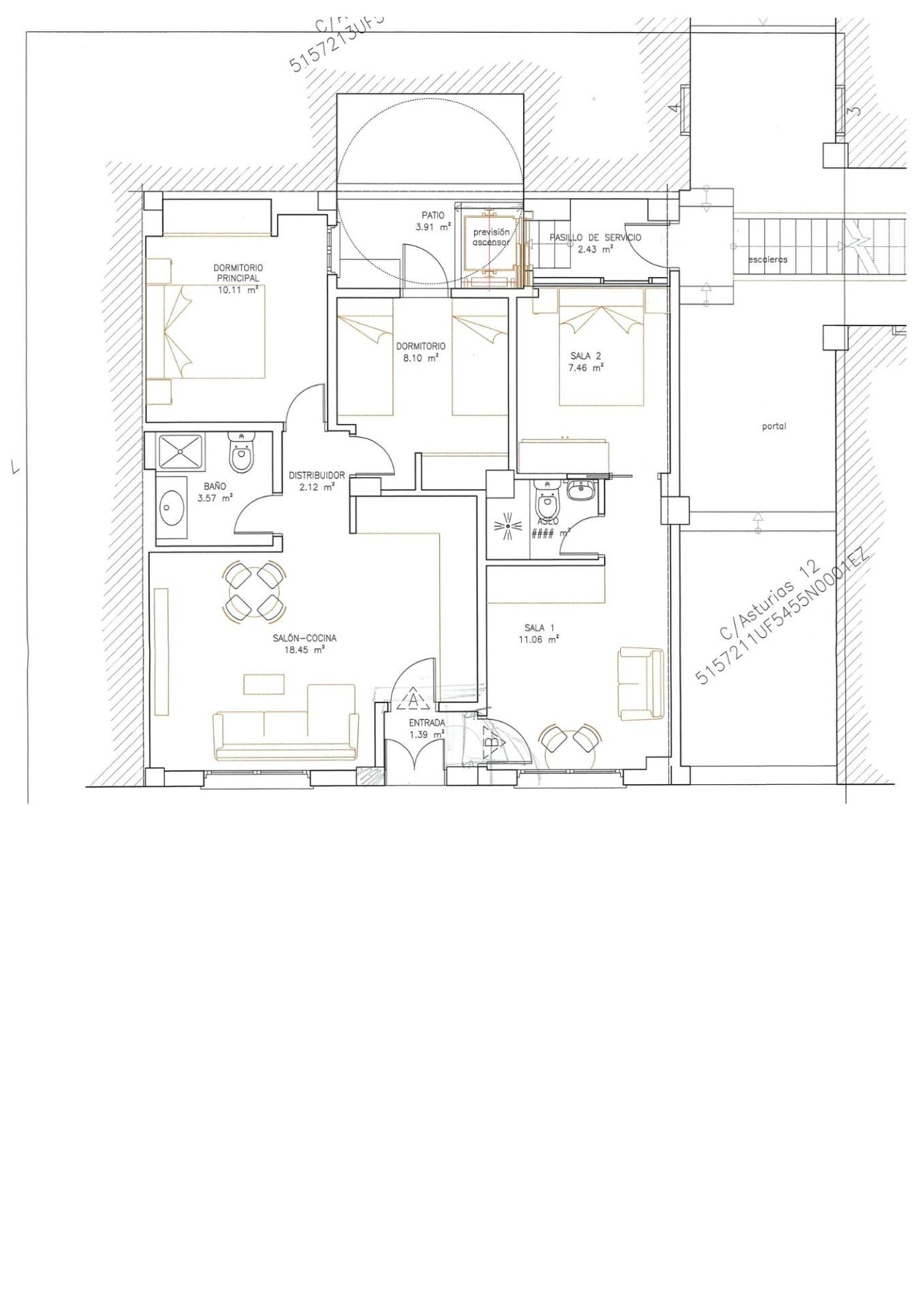
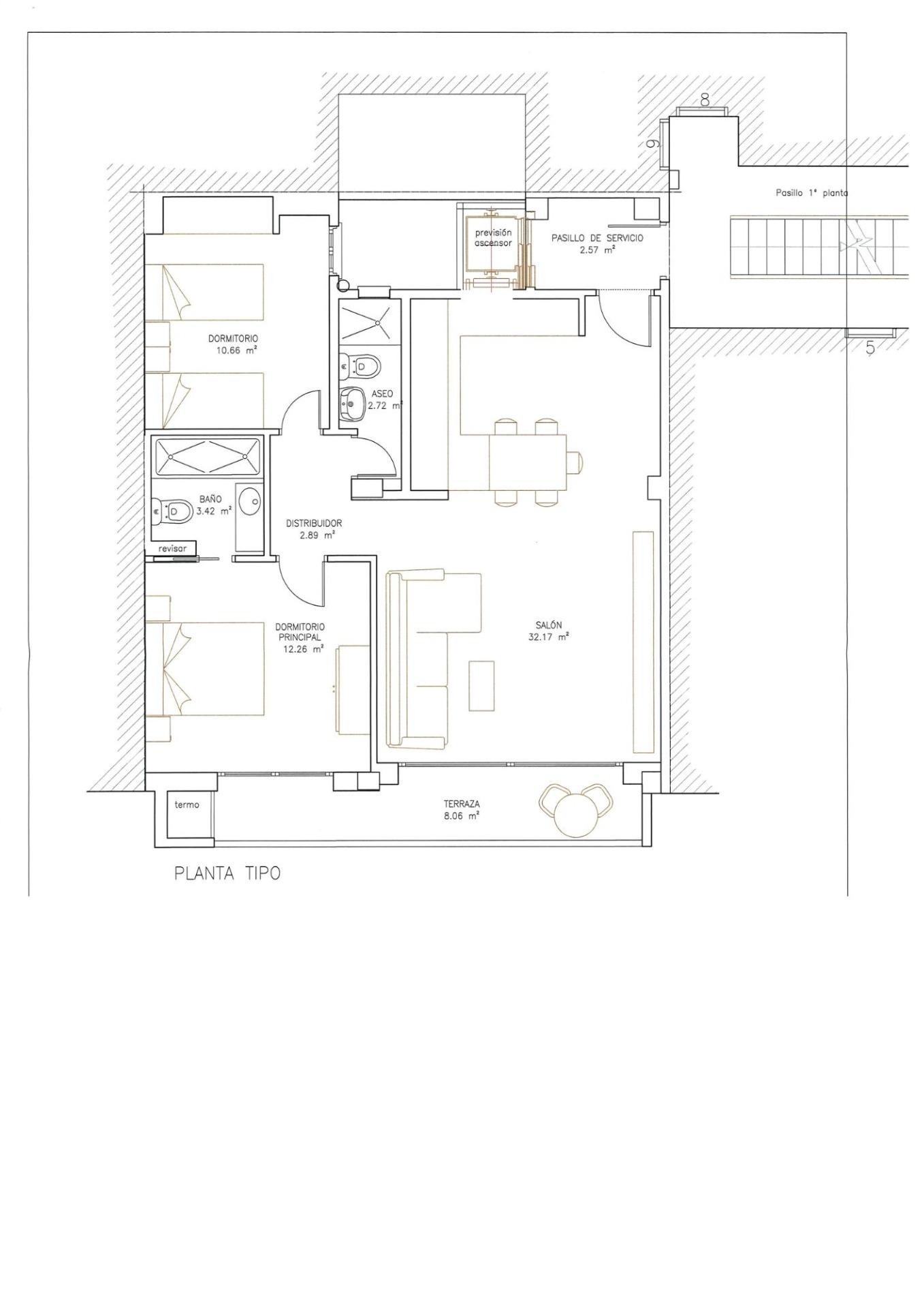
CLAVES DE LA INVERSIÓN: Bloque de 5 Unidades: 9 Dormitorios y 8 Baños en total.
Proyecto de Alto Margen: Edificio en proceso de reforma.
Ubicación: Máximo potencial para explotación de alquiler vacacional.
Ascensor Confirmado: Existe un acuerdo en el proyecto para la instalación de un ascensor, aumentando drásticamente el valor de las unidades.
OPCIONES DE COMPRA Y PRECIO: Opción A (Obra Iniciada): 990.000 € Opción B (Reforma Terminada): Posibilidad de adquirir el proyecto terminado a 1.450.000 €.
Para más información póngase en contacto con nosotros.



















