Ubicados en la zona de Cancelada, en Estepona Este, estos locales comerciales ofrecen una oportunidad única para establecer un negocio en un entorno estratégico. Sumando una superficie construida total de 898 m², que incluye 569,75 m² de interiores y 328,75 m² de terrazas, este conjunto de locales destaca por sus increíbles vistas abiertas, incluyendo terrazas con vistas al mar. La proximidad a servicios esenciales como colegios, tiendas, restaurantes, transporte público y campos de golf, así como a la playa y al centro urbano, la convierten en una ubicación privilegiada.
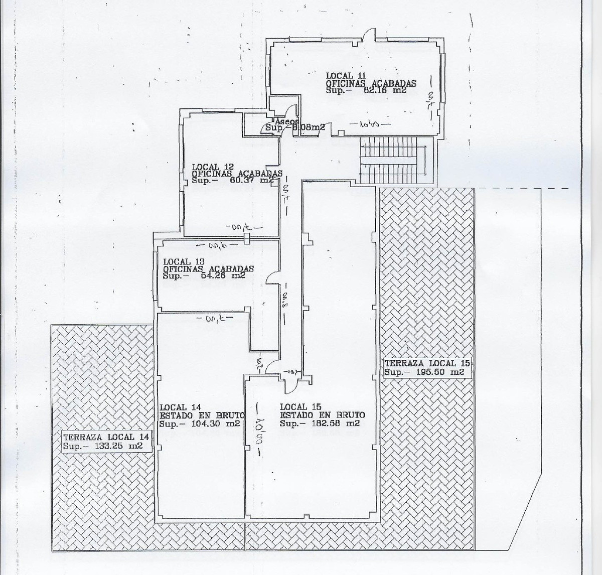
El paquete de activos está compuesto por un conjunto de seis locales distribuidos en dos plantas. En la primera planta se encuentran cuatro locales, de los cuales tres están completamente acondicionados para uso como oficina, con superficies de 82,16 m², 60,37 m² y 54,26 m² respectivamente. El cuarto local, en bruto, ofrece 104,30 m² de espacio interior y una terraza de 133,26 m². Además, en esta misma planta se encuentra otro local en bruto con 182,58 m² interiores y una amplia terraza de 195,50 m². En la segunda planta, se dispone de un local adicional acabado para oficina con una superficie de 86,08 m², ideal para actividades administrativas o comerciales.
Las terrazas, que suman un total de 328,75 m², ofrecen un espacio versátil que puede ser aprovechado para diversas actividades al aire libre, eventos o como área de descanso. Estas áreas exteriores, junto con las vistas panorámicas y urbanas, aportan un valor añadido a lo loales, haciendo de este conjunto de locales una opción atractiva para diferentes tipos de negocios.
Entre los extras que completan esta propiedad, se incluye un garaje privado con capacidad para 10 vehículos, lo que garantiza comodidad y seguridad para empleados y clientes. Aunque algunos de los locales requieren renovación, esta característica permite personalizar los espacios según las necesidades específicas del negocio. La ubicación estratégica, junto con las características y el potencial de los locales, hacen de esta propiedad una inversión interesante en una de las zonas más dinámicas de Estepona.




























































