Te presentamos esta propiedad única en la zona del Centro Comercial Torrequebrada.
Lo más destacado de esta vivienda es que no tiene vecinos ni arriba ni abajo (Piso / adosado), ofreciendo una tranquilidad absoluta.
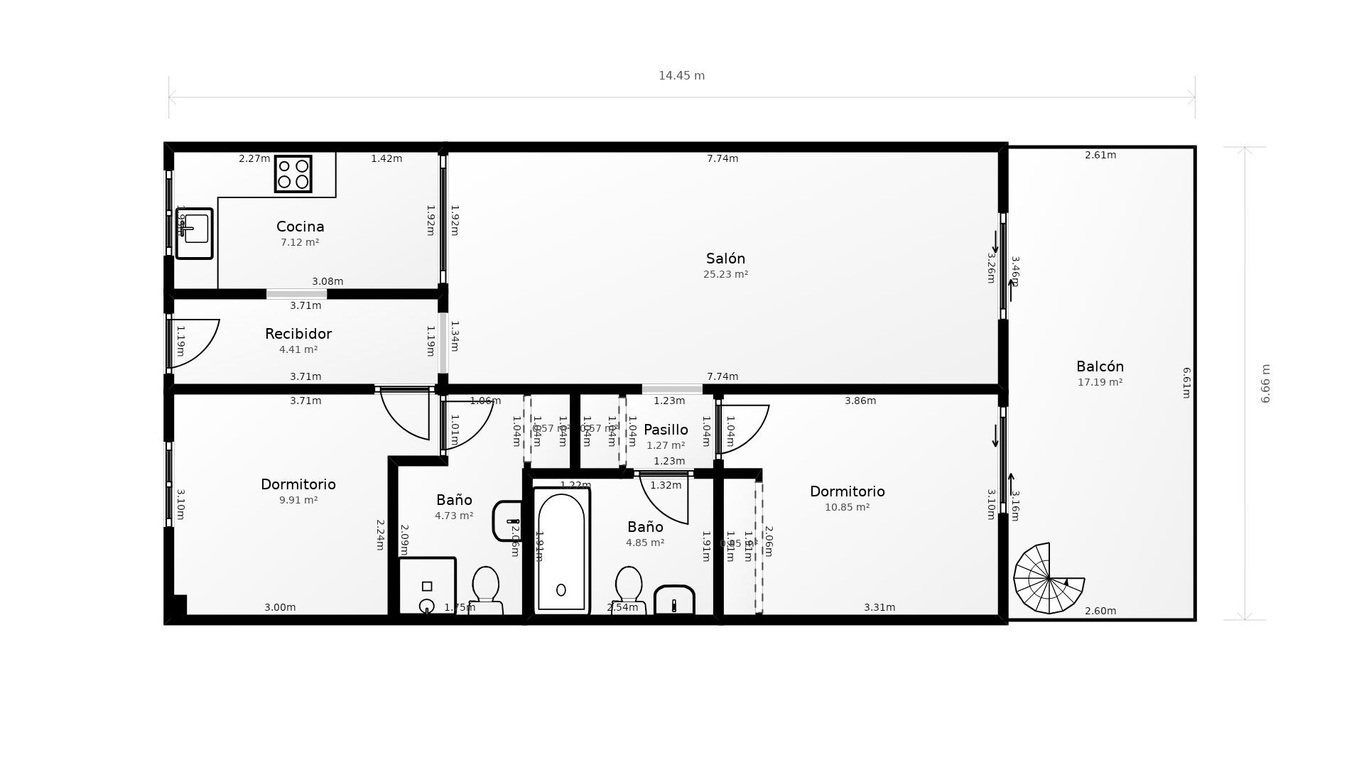
Distribución y puntos fuertes:
Planta Principal (60 m²): Un espacio acogedor y funcional con 2 dormitorios y 2 baños. El salón-comedor conecta directamente con una terraza de 13 m², el lugar ideal para desayunos con vistas a la montaña.
La Joya de la Corona – Solárium de 55 m²: Se accede a través de una escalera de caracol desde la terraza principal. Un espacio diáfano inmenso con vistas espectaculares al mar y a la montaña. Es el lienzo en blanco perfecto para instalar una pérgola, zona de barbacoa o un chill-out de ensueño.
Extras que marcan la diferencia: La vivienda incluye plaza de garaje y trastero en el mismo edificio.
Zonas comunes: Disfruta de un estilo de vida saludable con gimnasio totalmente equipado y piscina comunitaria.
Ubicación: Situado en la demandada zona de Torrequebrada, estarás a solo 400 metros de la playa. Tendrás el centro comercial, supermercados, farmacias y restauración a escasos minutos andando, combinando la paz de una zona residencial con la cercanía a todos los servicios.









































































