Una parcela única con vistas panorámicas al mar está a la venta en Riviera del Sol (Mijas), una de las zonas residenciales más codiciadas de la Costa del Sol.
La parcela incluye un permiso de obra en vigor y un plano para una villa de lujo, lo que permite el inicio inmediato de la construcción, evitando las largas demoras administrativas típicas de esta zona (el proceso de obtención del permiso tardó casi tres años).
La parcela goza de una ubicación privilegiada, siendo una de las últimas parcelas con vistas despejadas al mar, garantizada además por el espacio verde circundante, que evita cualquier futura construcción que pueda obstruirla.
Ubicada estratégicamente cerca de la salida 200 de la autopista AP-7, ofrece excelentes conexiones de transporte entre Marbella y Fuengirola y se encuentra a pocos minutos de playas, campos de golf, colegios internacionales, servicios y centros comerciales.
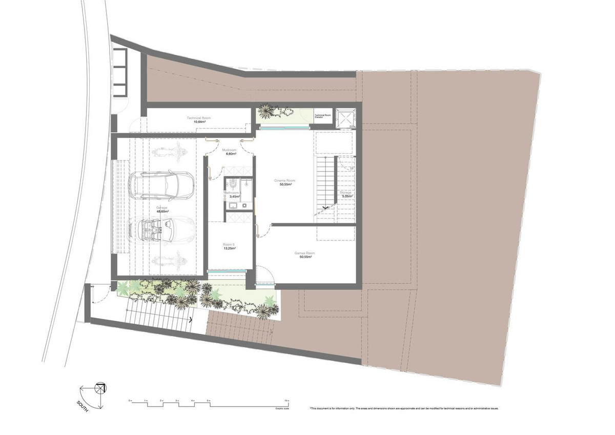
El proyecto incluye la construcción de una villa contemporánea de alta gama, diseñada para la máxima privacidad, con orientación suroeste y vistas impresionantes. Cuenta con amplios interiores y exteriores, piscina, terrazas y zonas de recreo.
Ideal para desarrolladores, compradores de propiedades de lujo o inversores que buscan una propiedad única con alto potencial en una zona bien establecida.
























