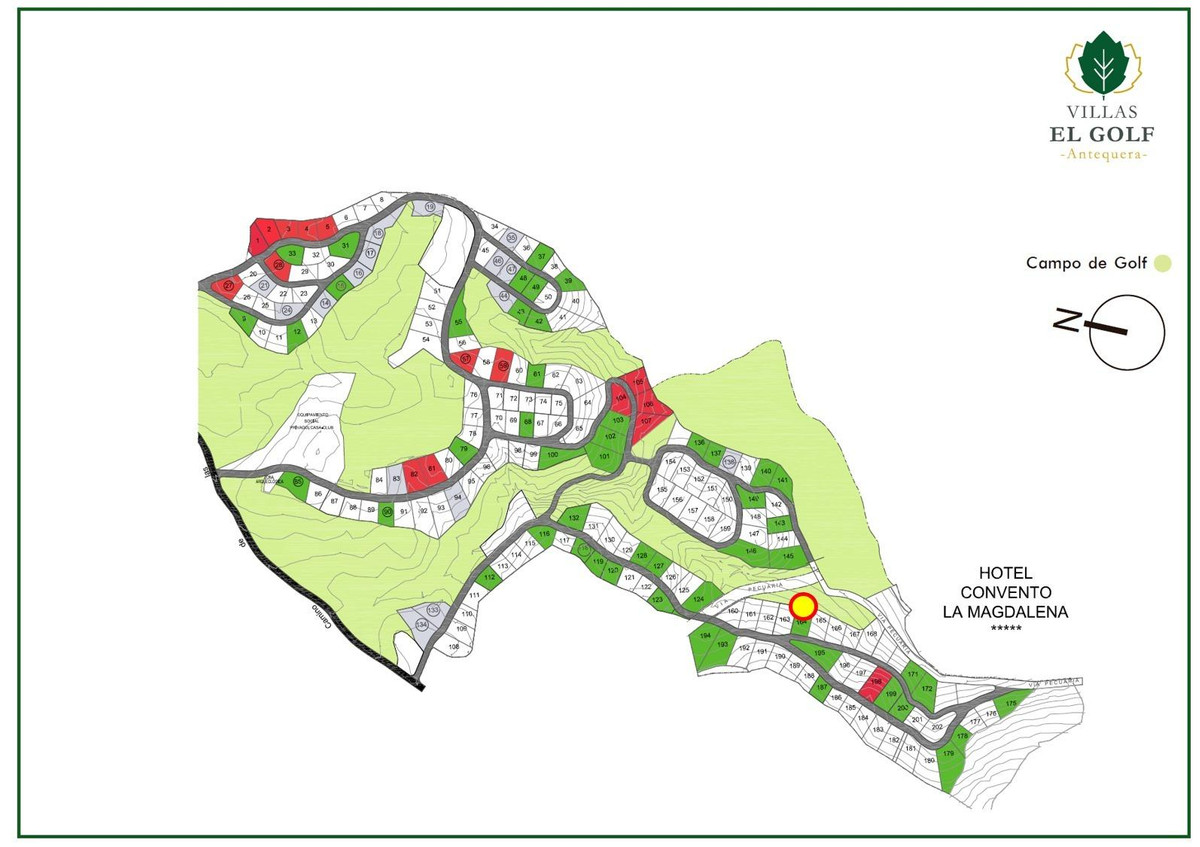
Se ofrece en venta un magnífico solar residencial urbanizado, con certificación catastral, ubicado en la exclusiva Urbanización Antequera Golf, una de las zonas con mayor proyección de crecimiento y calidad de vida en el centro de Andalucía.
La parcela nº 164 cuenta con una superficie total de 1.496 m2 y una edificabilidad de 331,48 m2, ideal para la construcción de una vivienda unifamiliar moderna y sostenible. Gracias a su orientación y emplazamiento privilegiado, el terreno ofrece vistas espectaculares al campo de golf y una panorámica abierta que permite disfrutar de la naturaleza y del paisaje característico de Antequera.
Se adjuntan infografías que muestran las posibilidades arquitectónicas del terreno: un proyecto de vivienda contemporánea, integrada en el entorno, con amplios ventanales, espacios abiertos, zonas ajardinadas y piscina privada. Una propuesta que combina diseño, eficiencia energética y confort, pensada para quienes buscan un hogar exclusivo en un entorno tranquilo, seguro y rodeado de belleza natural.
La ubicación es inmejorable. Antequera, declarada Patrimonio Mundial por la UNESCO, destaca por su historia, su rica oferta cultural y gastronómica, y su excelente conexión con el resto de Andalucía. Gracias a la autovía AP-46, Málaga capital y sus playas están a tan solo 50 minutos, lo que convierte a este enclave en una opción perfecta para quienes desean combinar la tranquilidad de la vida residencial con la cercanía a la ciudad.
El entorno del Antequera Golf se caracteriza por su ambiente selecto, su infraestructura consolidada y sus servicios cercanos: colegios, comercios, zonas deportivas y el prestigioso campo de golf de 18 hoyos. Todo ello hace de esta parcela una inversión segura y con gran proyección de futuro, tanto para construir la vivienda de tus sueños como para desarrollar un proyecto inmobiliario con alta rentabilidad.
Una oportunidad única de adquirir un terreno con potencial, ubicación privilegiada y vistas inigualables en una de las zonas más prometedoras de Antequera.
Le informamos que nuestros honorarios de agencia ya están incluidos en el precio de venta, por lo que no tendrá que pagar gastos de gestión ni de asesoramiento inmobiliario.
En cumplimiento del Decreto 218/2005 de la Junta de Andalucía, de 11 de octubre, le informamos que los gastos notariales, registrales, de transmisión patrimonial (ITP) y demás gastos inherentes a la venta no están incluidos en el precio.
La información proporcionada es solo orientativa, no vinculante y no tiene valor contractual. La oferta está sujeta a errores, cambios de precio, disponibilidad y/o retirada del mercado sin previo aviso. Esta información puede haber sido modificada, pero aún no se ha incorporado. Le sugerimos que contacte con la empresa para obtener la información más reciente y/o confirmar la información aquí proporcionada.






















































