Parcela edificable con proyecto en Rancho Domingo, Benalmádena Pueblo. Ubicación muy atractiva en una parcela de esquina al final de una calle sin salida cerca del pueblo con todo tipo de servicios.
El proyecto que está listo para la licencia de construcción consiste en una villa independiente con piscina privada y garaje. Está desarrollado para tener sótano, planta baja y primer piso, con garaje para dos vehículos y piscina. Se ha orientado de manera que las vistas principales se dirijan a los puntos donde no hay edificaciones, aumentando así la sensación de privacidad.
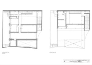
Planta sótano con gimnasio, trasteros, cuarto de instalaciones, cuarto de plancha, bodega, baño 1, lavadero, garaje y patio. Superficie útil total de sótano 223,97 m2.
Planta baja con salón, comedor, cocina, dormitorio principal, baño 2, vestidor, aseo, pasillo, entrada cubierta, porche cubierto y piscina. Superficie útil total planta baja 212,43 m2. Superficie construida cerrada en planta baja 89,60 m2.
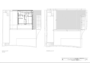
Planta primera con dormitorio 1, dormitorio 2, recibidor, baño 3, baño 4, terraza cubierta y terraza descubierta. Superficie útil total planta primera 83,10 m2. Superficie construida cerrada planta primera 46,91 m2
Superficie útil total proyectada 519,50 m2. Superficie construida total computable a nivel urbanístico 136,51 m2.
La edificación proyectada se ubica en un entorno urbano consolidado de la urbanización. Las parcelas de la zona están construidas o en proceso de construcción.






























