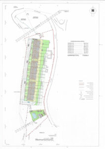
Oportunidad para Promotores, una parcela de 7.200 m2 para 18 viviendas Unifamiliares, con un techo edificable de 2.500m2;
siendo 7 parcelas independientes y modalidad exclusiva en Benalmádena, entorno idílico de la costa del sol, orientación Sur,
rodeada del magnificó entorno del pueblo de Benalmádena, con espectaculares vistas al mar.
Se venden el conjunto de las 18 no por separado.
Se ofrece estudio de arquitectura con estudio de costes pormenorizado que garantiza la inversión y la reducción de costes mediante viviendas industrializadas.












