Gran oportunidad para tu casa de ensueño en el corazón de Marbella
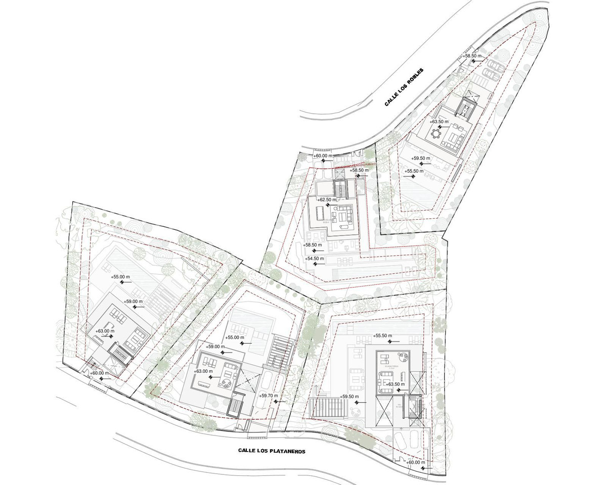
EL ROSARIO VALLEY – Proyecto de desarrollo único de una de las compañías de desarrollo más grandes de la Costa del Sol.
El Rosario Valley se encuentra en el corazón de una de las urbanizaciones residenciales cerradas más prestigiosas de Marbella. Con altos estándares de seguridad, carreteras recién construidas, amplias zonas verdes y una ubicación cercana a largas y hermosas playas mediterráneas, clubes de playa, restaurantes, áreas comerciales y a 1 minuto en coche del Royal Tennis Club.
El proyecto incluye 5 villas individuales desarrolladas por uno de los arquitectos más célebres de Marbella. Las villas contarán con vistas espectaculares a la montaña La Concha, el emblema de la Costa del Sol, y vistas parciales al mar desde las terrazas solárium en la azotea.
La villa en la calle Los Plataneros, en la urbanización cerrada El Rosario, tiene un total de 1.010 m², con 390 m² construidos en el sótano y la planta baja, más terrazas adicionales y solárium de 300 m².






















