Proyecto de Villa Contemporánea con Vistas al Mar y Licencia Concedida
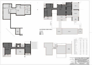
Hacienda Las Chapas es una de las urbanizaciones costeras más demandadas y amplias de Marbella. Grandes parcelas, vegetación consolidada y vigilancia 24 horas garantizan tranquilidad y privacidad, mientras que la playa, beach clubs y colegios internacionales se encuentran a pocos minutos. En este entorno se sitúa Villa Jazmín, en una de las parcelas mejor posicionadas y más privadas de la urbanización. La parcela de aproximadamente 2.345 m² linda directamente con una zona verde protegida. Las vistas abiertas hacia el mar, Gibraltar, África y la naturaleza circundante son permanentes. No se puede construir nada delante. La venta incluye la villa existente, licencia definitiva de demolición, licencia de obra concedida, el proyecto completo del reconocido arquitecto de Marbella y presupuesto detallado de ejecución. El proyecto está totalmente preparado y listo para iniciar la construcción. La licencia concedida permite la construcción de una villa contemporánea con una superficie total construida de aproximadamente 656 m². Aproximadamente 392 m² se sitúan sobre rasante y aproximadamente 268 m² corresponden a la planta inferior habitable. Además, se proyectan más de 480 m² de terrazas y espacios exteriores. La planta inferior está diseñada como un nivel residencial completo. Dormitorios adicionales, zona wellness, gimnasio, cine o espacio de entretenimiento pueden desarrollarse sin concesiones. Se trata de un nivel habitacional integrado en el diseño global. Sobre rasante, el concepto arquitectónico gira en torno a espacios abiertos, luz y líneas visuales. Grandes ventanales conectan directamente las zonas de estar con las terrazas y la piscina. El diseño aprovecha al máximo la orientación, la privacidad y las vistas. La combinación de ubicación, vistas protegidas, licencia completa y proyecto arquitectónico desarrollado convierte esta propiedad en una propuesta diferenciada dentro del segmento alto de Marbella Este.


























