Esta magnífica parcela ofrece unas vistas panorámicas excepcionales al mar y a la montaña. Las dos parcelas colindantes ya se han vendido y la parcela colinda con una zona verde, lo que impide construir delante y obstruir las maravillosas vistas.
La parcela de 1.401 m² se encuentra cerca de la casa club de golf y cuenta con servicios de electricidad, teléfono, agua, alcantarillado y seguridad 24 horas.
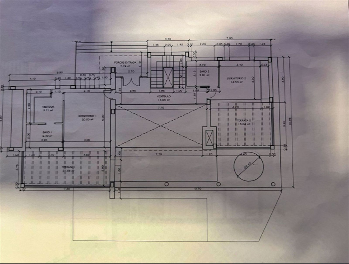
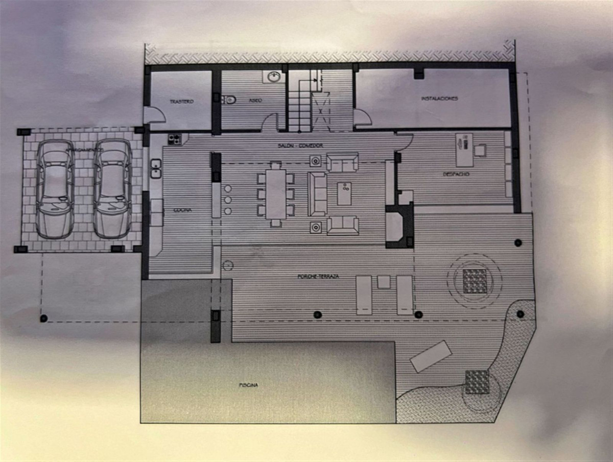
La normativa de construcción vigente permite construir una villa independiente de 265 m² + terrazas descubiertas, piscina y sótano.
Orientación: Este, Sureste, Sur.
Altura máxima: 7 m, lo que permite construir 2 plantas más sótano, garaje y piscina.
La Cala Resort es un complejo de golf en el municipio de Mijas, provincia de Málaga. Incluye tres campos de golf de 18 hoyos (Campo América, Campo Asia y Campo Europa), un campo de pitch & putt de 6 hoyos par 3 y la Academia de Golf La Cala. También cuenta con el hotel de cuatro estrellas La Cala Spa Hotel. Los tres campos de 18 hoyos fueron diseñados por Cabell B. Robinson y presentan diferentes niveles de dificultad.
Tanto el hotel como las demás instalaciones son de estilo tradicional andaluz. Fue inaugurado en 1989. Málaga y Marbella están a unos 30 minutos en coche.
Cerca del establecimiento se encuentra el famoso colegio alemán La Mairena.
Para más información, no dude en contactarnos.




























































