Oportunidad en el corazón de Mijas Costa
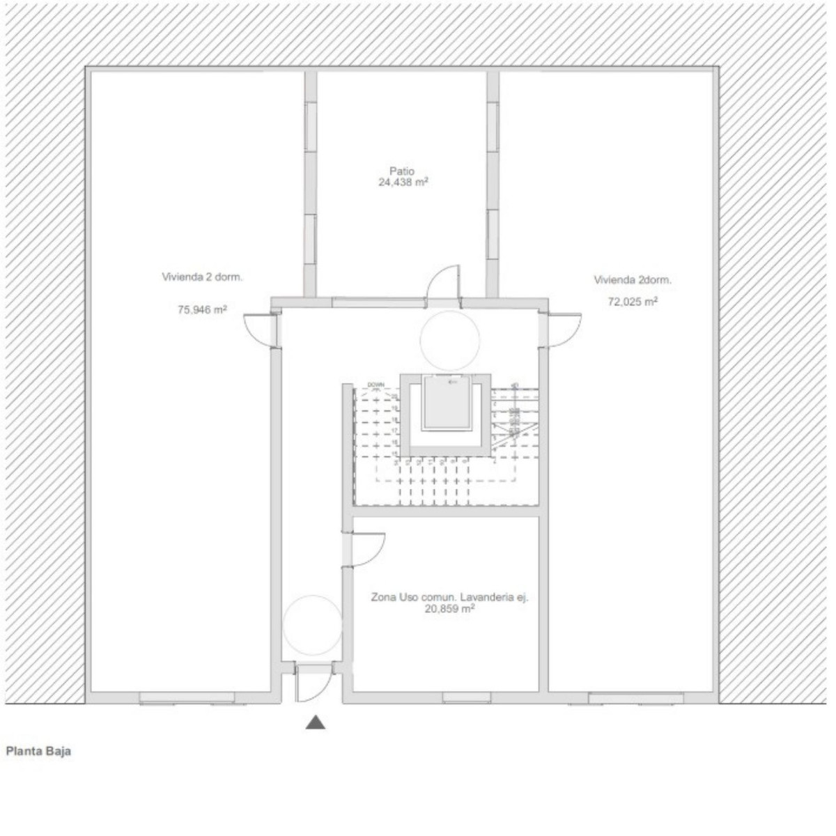
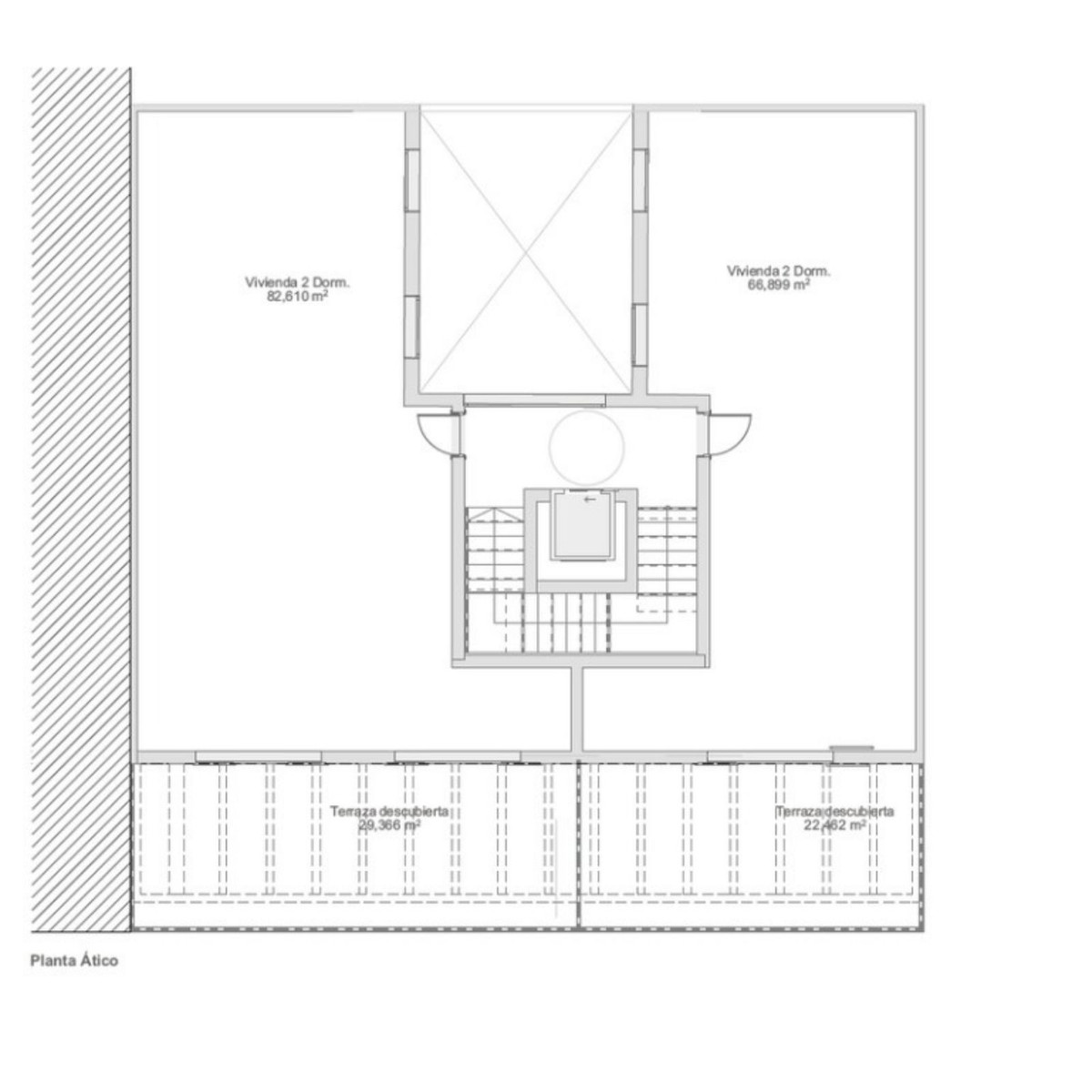
Antigua casa situada en pleno centro de Mijas Costa, con proyecto aprobado para la construcción de un edificio de 10 apartamentos.
Una ubicación inmejorable, cerca de todos los servicios: tiendas, restaurantes, transporte y todo lo necesario para disfrutar de una vida cómoda y práctica.
Ideal como inversión o desarrollo residencial en una de las zonas más demandadas de la Costa del Sol.
Incluye parcela actual y proyecto de arquitectura.
???? ¡No dudes en consultarnos para más información!


























