Suelo Urbano – Mijas Pueblo – Costa del Sol.
Magnífica parcela urbana en venta en zona muy deseada La parcela está rodeado por arboles maduros que asegura privacidad A un minuto en coche del centro de Mijas Pueblo
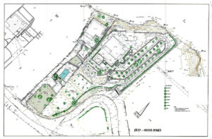
Estudio de Detalle ya aprobado para construir 11 adosados y 1 villa
Datos técnicos:
• La parcela se ubica en el sector U.E S-19 de Mijas
• Respeta todos los linderos establecidos en los planos de alineamiento
• La superficie total es de 6.008,89 m² según IBI (4.188,89 m² + 1.820,00 m²)
El P.G.O.U. de Mijas, se asigna los siguientes límites para la construcción:
– Coeficiente de construcción: 0,35 m²/m²
– Número de propiedades permitidas: 1 residencia por 500 m²
– Nº de plantas permitidas: 2
TOTAL EDIFICABILIDAD SEGÚN P.G.O.U.: 2.103,11 m²/T (máximo 12 viviendas)
En el Estudio de Detalle (aprobada) se plantea:
Edificabilidad: 1.918,74 m²/T
Nº de viviendas: 12
Altura máxima: 2
Ocupación: 21,14%
Aparcamientos: 18
El PGOU clasifica las parcelas como AIS-3. Según el arte. 229, 4b del PGOU, se pueden desarrollar conjuntos de viviendas unifamiliares adosadas (ADS), tramitadas mediante Estudio de Detalle.
La superficie mínima de parcela requerida para el desarrollo de dichas actuaciones en la Subzona AIS-3 es de 4.000 m². En este caso hay 6.008,89 m²










































