Terreno urbano con vistas al mar en Paraíso del Sol – Rincón de la Victoria
Descubre esta oportunidad única de inversión o construcción de tu vivienda ideal en una de las zonas más exclusivas de la Costa del Sol. Situada en Calle Bahamas, 123, esta parcela urbana de 626 m² destaca por su ubicación estratégica, vistas abiertas al mar y proyecto ya desarrollado, facilitando al máximo tu proceso de edificación.
Características principales:
Superficie total: 626 m² de terreno urbano.
Vistas panorámicas al mar y al campo de golf, aprovechando la ligera pendiente natural del terreno.
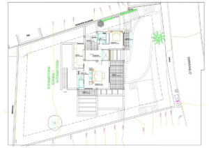
Licencia y proyecto arquitectónico listo para construir una vivienda unifamiliar con sótano + baja + primera planta.
Orientación privilegiada para máximo aprovechamiento de luz natural.
Excelente comunicación y servicios a menos de 5 minutos en coche: supermercados, colegios, centro de salud, zonas deportivas y playa.
A solo 15 minutos de Málaga capital por autovía.
¿Por qué esta parcela es una oportunidad destacada?
Este terreno no solo ofrece espacio y vistas espectaculares: ya cuenta con proyecto y estudio geológico realizados, lo que representa un ahorro importante en tiempo y costes para iniciar la construcción de tu casa o inversión con total tranquilidad.
Ideal para:
Construcción de residencia familiar con jardín y piscina.
Proyecto de inversión en una zona consolidada de la Costa del Sol.
Vivienda de verano con vistas al mar o residencia permanente.
Contacta ahora para más detalles y asesoramiento personalizado. Tu proyecto empieza aquí.














