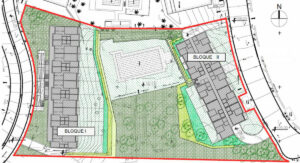
Terreno en Riviera del Sol con posibilidad de desarrollar 64 apartamentos de 2 y 3 dormitorios, cada uno con su propio trastero y plaza de aparcamiento. Superficie construible de 7.080 m2 para uso residencial, compatible con uso hotelero. Licencia de construcción otorgada en 2012 y caducada. Proyecto preliminar para dos bloques residenciales con 7.017 m2 construidos sobre rasante. Operación sujeta a IVA (21%).








