Parcela con proyecto para villa en La Boladilla Resort, New Golden Mile, Estepona
A solo 400 metros del mar, en urbanización cerrada de villas de alto nivel
Parcela de 500 m² ubicada en La Boladilla Resort, una exclusiva urbanización cerrada compuesta por aproximadamente 100 parcelas destinadas a villas unifamiliares de características homogéneas, lo que garantiza coherencia arquitectónica, privacidad y un entorno residencial de calidad.
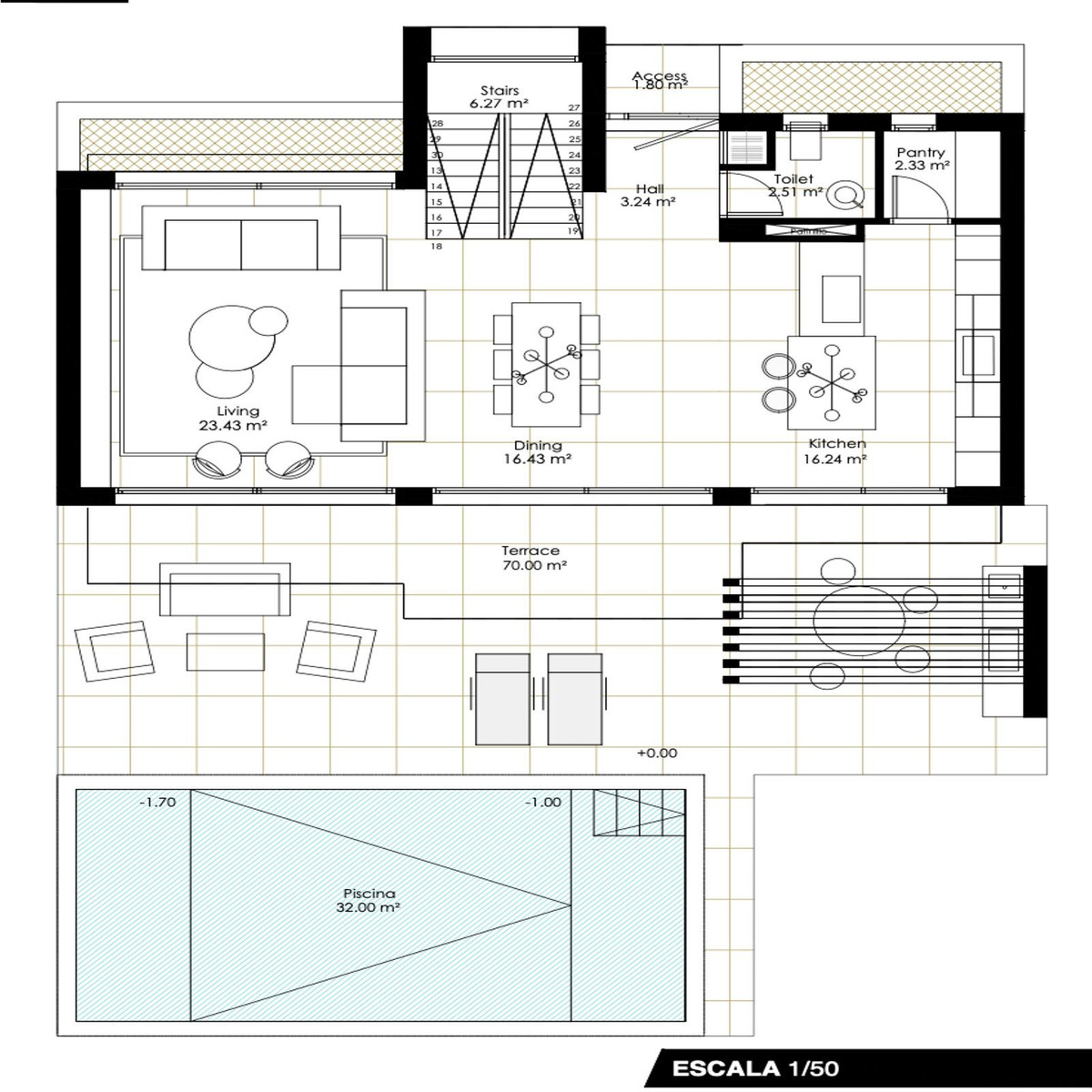
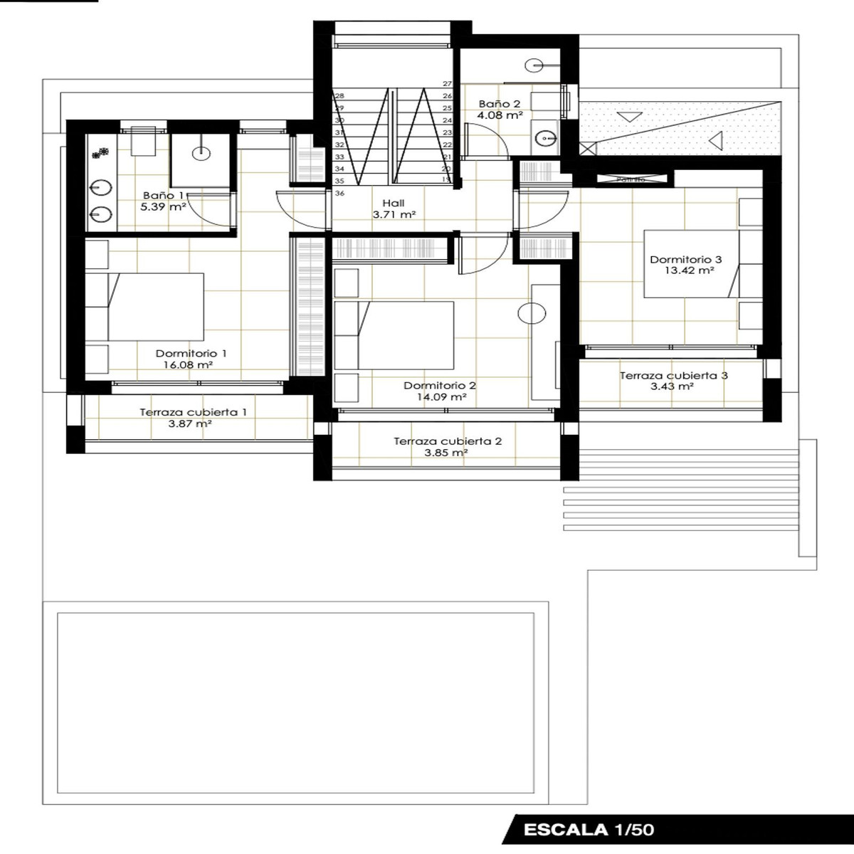
La parcela cuenta con proyecto para la construcción de una villa distribuida en dos plantas más sótano, con una edificabilidad aproximada de 225 m², ofreciendo una base ideal para desarrollar una vivienda moderna adaptada a vida familiar o a inversión.
Tras un periodo de demora administrativa, el ayuntamiento ha reactivado la concesión de licencias, permitiendo iniciar o continuar las obras, lo que convierte esta propiedad en una oportunidad especialmente interesante para promotores, inversores o compradores finales.
Ubicada en la New Golden Mile, en una zona en pleno crecimiento y con fuerte demanda internacional, esta parcela destaca por su cercanía a la playa, su entorno consolidado y su potencial de revalorización.
Una excelente oportunidad para construir una villa de lujo para vivir en familia, desarrollar un proyecto para venta o mantenerla como inversión patrimonial.






















