Parcela con licencia de obra en Urbanizacion Rocio de Nagueles, situada estratégicamente en el corazón de la Milla de Oro de Marbella, por lo que ofrece unas maravillosas vistas tanto al mar como a la montaña.
Cuenta con accesos directos desde de la Autovía del Mediterráneo o A7, lo que la sitúa a tan sólo 5 minutos en coche del centro de Marbella y de Puerto Banús, así como de los mejores colegios como The British International School of Marbella, campos de golf ubicados en la Costa del Sol.
Todo esto, la hace un lugar ideal tanto para el descanso por su idílico entorno como para el disfrute del ocio marbellí.
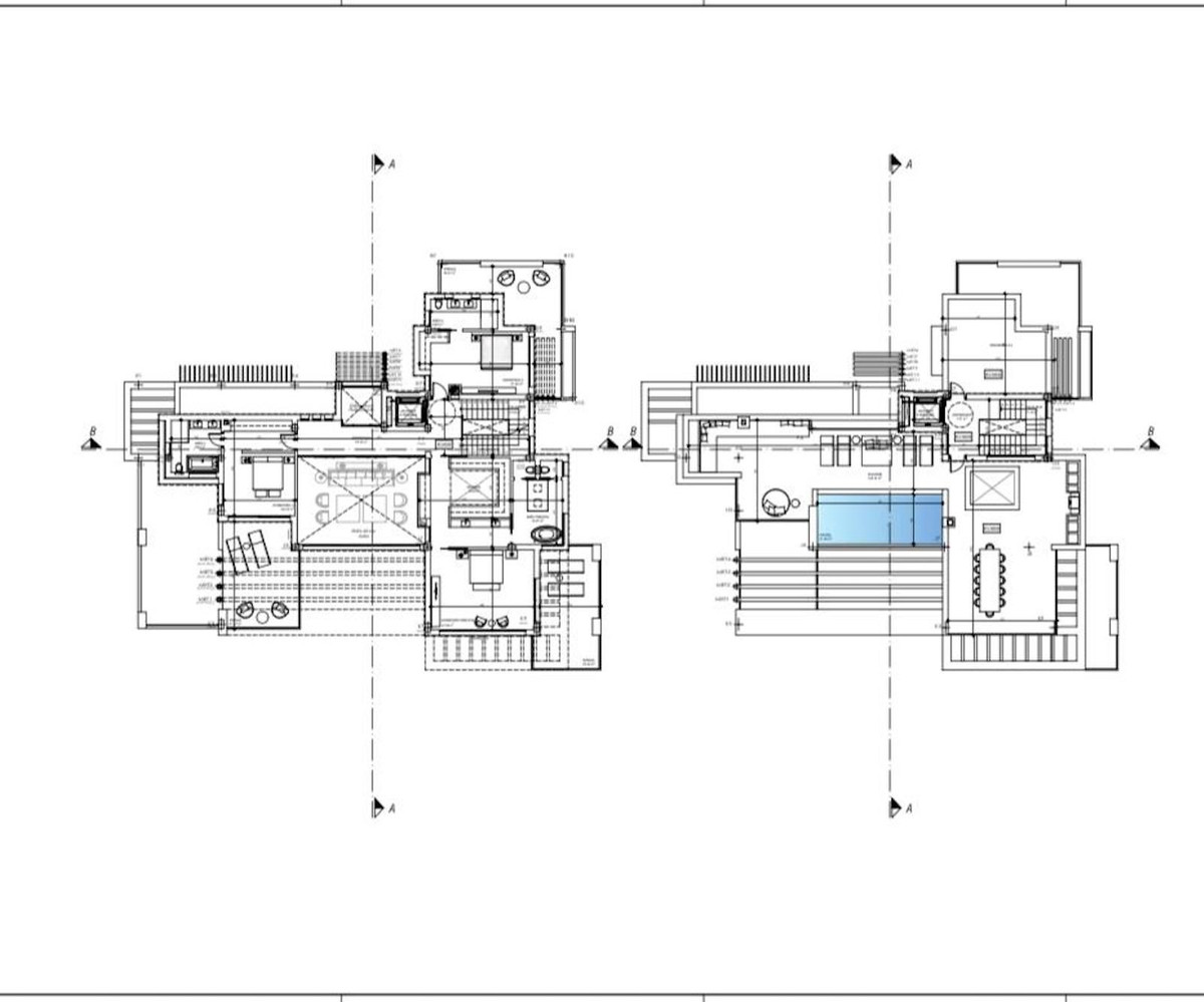
Superficie de esta parcela en concreto: 1.850 m2. Edificabilidad 481 m2. Clasificación UE-4 (Unifamiliar). Se puede construir 2 plantas más sótano.






























































