Diseño contemporáneo en plena naturaleza
Presentamos, una vivienda unifamiliar ubicada en Arroyo del León, Puerto de la Torre (Málaga). Un proyecto que combina armoniosamente arquitectura moderna, funcionalidad y conexión con el entorno natural.
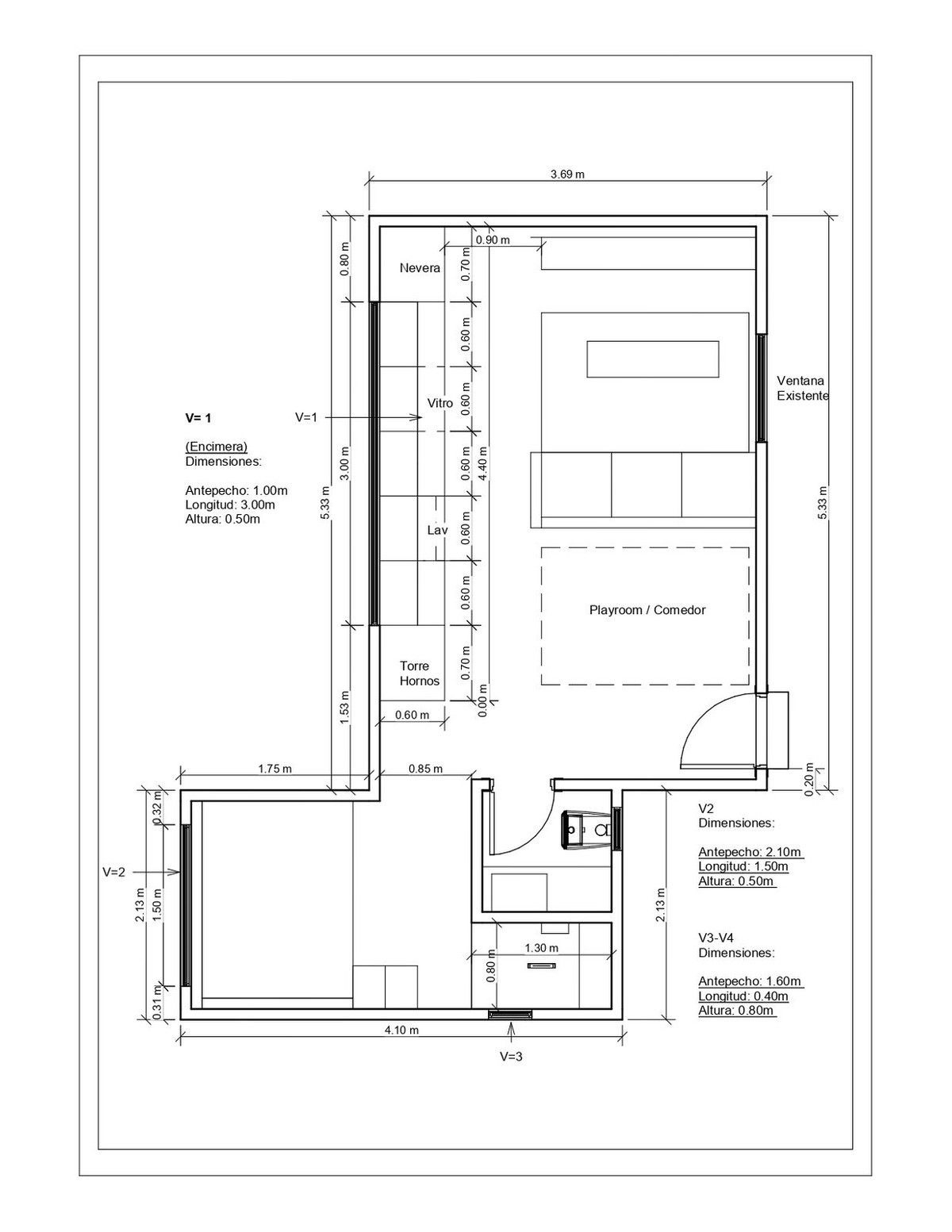
Construida en una sola planta y con una superficie interior de aproximadamente 36 m², esta vivienda ha sido diseñada para ofrecer comodidad, eficiencia y estilo. Su distribución incluye:
Cocina abierta con comedor y salón integrados
Dormitorio principal más un espacio adicional versátil
Baño tipo spa con acabados en microcemento
Iluminación natural y diseño interior con materiales nobles
Entorno privilegiado:
Situada en una zona residencial tranquila, rodeada de naturaleza y perfectamente conectada con el centro de Málaga y la costa. Ideal para quienes buscan vivir con calma, calidad y estilo, sin renunciar a la cercanía de la ciudad.
A solo 9 km del centro de Málaga
A 16 km del Aeropuerto
A 12 km de la Playa de la Misericordia
Próxima a campos de golf, centros de bienestar y zonas de ocio
León 3 no es solo una casa, es una forma de vivir: luminosa, práctica y en armonía con el paisaje.




































