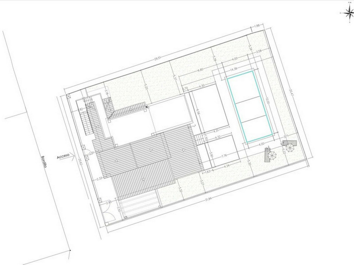
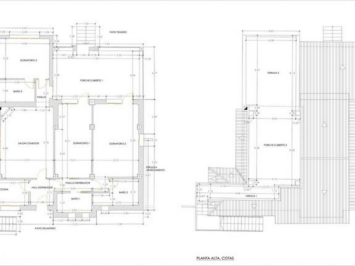
Descubre una villa con esencia mediterránea en la codiciada zona de Buenas Noches, Estepona, donde la tranquilidad y la cercanía al mar crean un estilo de vida privilegiado: esta propiedad independiente, asentada sobre una generosa parcela, ofrece un cuidado jardín privado con piscina y amplias terrazas diseñadas para disfrutar del clima de la Costa del Sol durante todo el año; distribuida en una sola planta para mayor comodidad, la vivienda destaca por su luminosidad y espacios abiertos, con un acogedor salón, tres dormitorios y tres baños que aportan confort tanto para residencia habitual como para escapadas exclusivas; en la parte superior, un atractivo solárium con vistas despejadas se convierte en el rincón perfecto para relajarse al atardecer, mientras que su ubicación estratégica, a pocos minutos de la playa y con excelente conexión a Marbella y Gibraltar, la posiciona como una oportunidad única tanto para vivir como para invertir con alta rentabilidad.
Villa – Chalet, Estepona, Costa del Sol.
3 Dormitorios, 3 Baños, Construidos 269 m², Jardin/Terreno 655 m².
Posición : Cerca del Mar, Cerca de Ciudad, Cerca de Colegios, Urbanización.
Orientación : Norte, Este, Sur, Oeste.
Estado : Buen.
Piscina : Privada.
Climatización : Aire Acondicionado.
Vistas : Mar, Montaña, Panorámicas, Jardín, Patio, Urbanas, Calle.
Caracteristicas : Terraza Cubierta, Armarios Empotrados, Terraza Privada, Lavadero, Acceso para personas con movilidad reducida, Barbacoa.
Muebles : Parcialmente.
Cocina : Equipada.
Jardin : Comunitario, Privado, Mantenimiento fácil.
Aparcamiento : Garaje.
Servicios Públicos : Electricidad, Agua Potable.


































































































