Villa con parcela de 1.500 m² y vistas al mar en Estepona – una oportunidad única con gran potencial
Ubicada en una tranquila zona de Estepona, esta encantadora villa se sitúa en una generosa parcela de 1.500 m² y ofrece vistas abiertas al mar, privacidad y una excelente oportunidad para crear una residencia excepcional en la Costa del Sol.
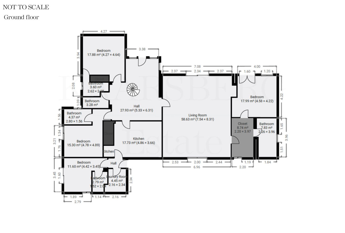
Con 319 m² construidos, la propiedad combina el encanto de una villa consolidada con mejoras recientes, al mismo tiempo que ofrece la posibilidad de actualizar algunas áreas para adaptarlas a un estilo de vida más moderno.
La villa cuenta con 4 amplios dormitorios, todos situados en la planta baja, cada uno con armarios empotrados y baño en suite, además de un lavadero independiente. La entrada conduce a un impresionante hall de doble altura, desde el cual una escalera lleva a la primera planta, donde se encuentra una acogedora oficina con chimenea y acceso a una gran terraza con vistas abiertas al mar.
La cocina fue completamente renovada hace tres años y está equipada con mobiliario Designa Kitchen de estilo nórdico, con elegantes armarios y soluciones de cajones que ofrecen funcionalidad y comodidad. La cocina cuenta con electrodomésticos nuevos, entre ellos un frigorífico combi extra ancho, una vitrocerámica con extractor integrado, suelo nuevo y un sistema Quooker que proporciona agua hirviendo al instante.
El salón, amplio y luminoso, se abre hacia una gran terraza en la parte frontal de la casa de 150m2, donde se encuentra una piscina de 40 m² rodeada de amplio espacio para tomar el sol. Desde el salón también se accede a una gran terraza cubierta de 65 m², ideal para comer al aire libre, relajarse a la sombra o disfrutar del suave clima mediterráneo durante todo el año.
La vivienda está equipada con aire acondicionado en todos los dormitorios, en la oficina y en el salón, instalado hace aproximadamente tres años, así como dos nuevos termos de agua caliente de gran capacidad.
Además de la gran terraza frontal, la propiedad ofrece agradables zonas de jardín donde disfrutar del exterior en un entorno tranquilo.
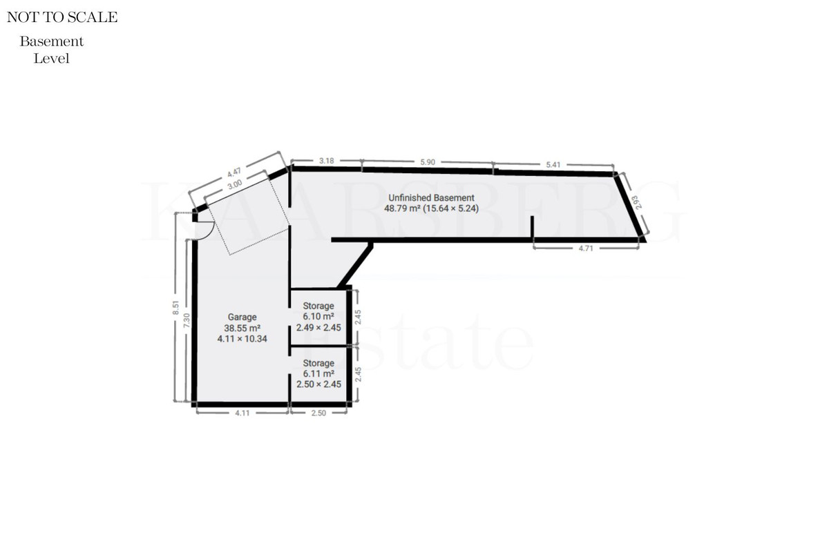
La villa también cuenta con una entrada lateral con espacio para aparcar un coche dentro de la parcela. Asimismo, dispone de un anexo independiente con acceso para garaje y amplio espacio de almacenamiento, ideal para herramientas, maquinaria de jardín u otros usos.
Una propiedad con gran encanto, amplios espacios habitables y un gran potencial, situada en una zona donde villas con parcelas de estas dimensiones y vistas al mar son cada vez más difíciles de encontrar.




































































































