3424-V Se vende casa en perfecto estado de edificación y completamente en regla, sin necesidad de realizar ningún tipo de reforma. Está ubicada en el centro del pueblo, a pocos metros de la piscina municipal, polideportivo, colegio, centro de salud y restaurante.
La vivienda está construida con materiales de primera calidad, ventanas climalit abatibles y puertas macizas.
La vivienda dispone en todas las habitaciones y pasillos, pre-instalación de radiadores de agua para calefacción.
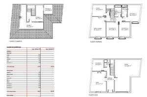
La vivienda está edificada en el año 2000, tiene una superficie construida de 263,85 m2, distribuidos de la siguiente forma:
107,78 m2 en la planta baja, la cual consta de entrada principal, salón con chimenea, dormitorio, cuarto de baño y amplio garaje con puerta automática, en la cual se ha instalado una cocina.La capacidad del garaje es para 3 vehículos.
107,78 m2 en la planta primera, la cual consta de cocina nueva (sin apenas uso), salón, tres dormitorios, dos de ellos con armarios empotrados, y dos baños, uno de ellos en suite dentro de una de las habitaciones. 22,85 m2 en planta segunda, la cual consta de una amplia habitación. 25,44 m2 de terraza en planta segunda, dividida en dos zonas, con hermosas vistas al valle.
En cumplimiento del decreto de la junta de Andalucía 208/2005 del 11 de octubre, se informa a los clientes, que los gastos notariales, registrales, i. t. p, y otros gastos inherentes a la compraventa, no están incluidos en el precio.












































































































