Villa – Chalet, Estepona, Costa del Sol.
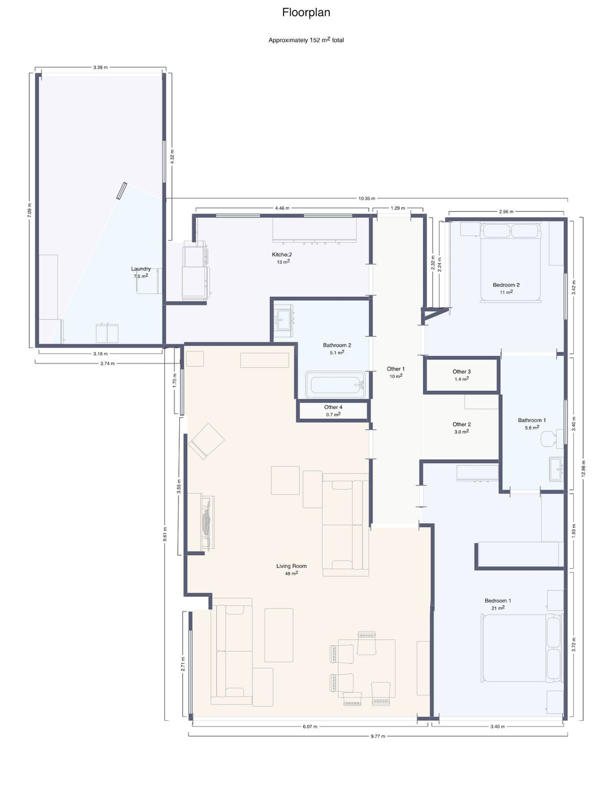
5 Dormitorios, 3 Baños, Construidos 327 m², Jardin/Terreno 488 m².
Posición : Lado de la Playa, Cerca del Mar, Urbanización.
Orientación : Sur.
Estado : Excelente.
Piscina : Privada.
Climatización : Aire Acondicionado, A/A Caliente, A/A Frio.
Vistas : Mar, Montaña, Jardín, Piscina.
Caracteristicas : Armarios Empotrados, Cerca de Transporte, Terraza Privada, Lavadero, Baño En-Suite, Doble acristalamiento.
Muebles : Opcionales.
Cocina : Equipada.
Jardin : Privado.
Aparcamiento : Garaje.
Servicios Públicos : Electricidad, Agua Potable.
Categoría : Golf, Casas de vacaciónes, Reventa.


















































































