Esta impresionante villa de 3 dormitorios está situada en la prestigiosa zona de Nueva Andalucía, Marbella. Con su ubicación privilegiada, esta propiedad ofrece la combinación perfecta de tranquilidad y comodidad. Situada en una amplia parcela de 800m², esta villa cuenta con una superficie construida de 300m², proporcionando un amplio espacio para una vida cómoda.
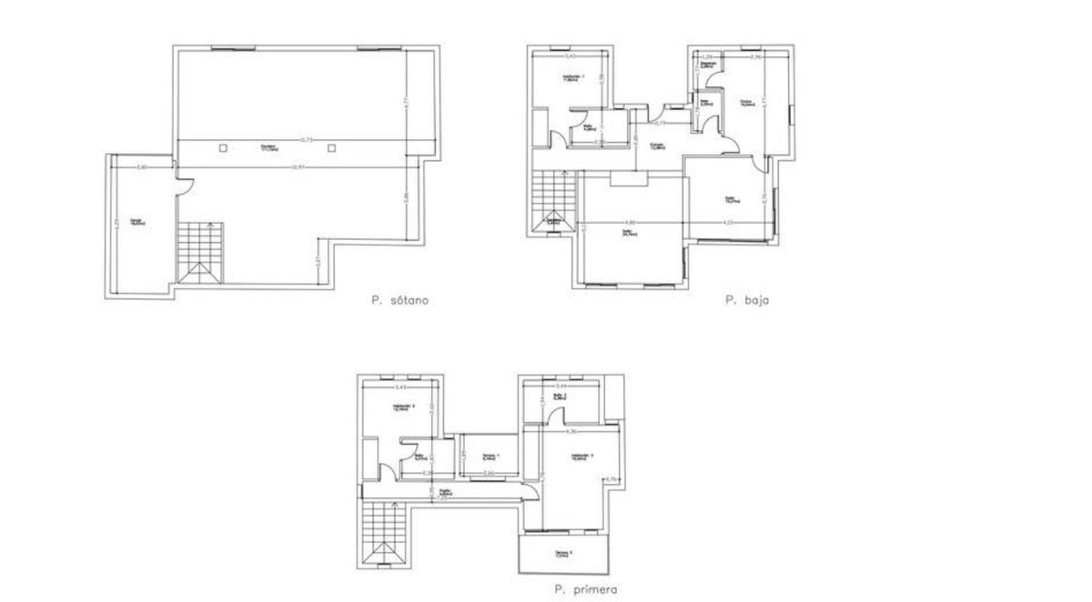
Construido en 3 niveles, con sótano y garaje en la planta baja, la villa cuenta con 3 dormitorios y 3 baños más aseo de invitados, lo que garantiza un montón de espacio para la familia y los invitados. Actualmente están construyendo 2 dormitorios y 1 baño más para ofrecer un total de 5 dormitorios, 4 baños y 1 aseo.
La villa también cuenta con un comedor y una terraza cubierta con zona de barbacoa, ideal para organizar cenas y reuniones. El salón es amplio y luminoso con una chimenea, creando un ambiente acogedor para la relajación y el entretenimiento. La espaciosa cocina está equipada con electrodomésticos modernos, y tiene una mesa de desayuno, haciendo que cocinar sea un placer. Aire acondicionado, armarios empotrados y suelos de mármol.
Uno de los aspectos más destacados de esta villa es su piscina y jardín privados. La piscina ofrece un refrescante oasis para relajarse y disfrutar del clima mediterráneo. El jardín ofrece un espacio privado y tranquilo, perfecto para el entretenimiento al aire libre o simplemente disfrutar del hermoso entorno.
La villa también está convenientemente situado cerca del mar / playa, Puerto Banús y San Pedro pueblo, así como campos de golf, tiendas y escuelas. La propiedad ofrece una mezcla perfecta de estilo, comodidad y conveniencia. Con sus impresionantes características y ubicación privilegiada, es una propiedad ideal para aquellos que buscan un estilo de vida lujoso y moderno en una de las zonas más codiciadas de la Costa del Sol


















