Gran chalet en venta en Alhaurin de la Torre, El Lagar, que podría adaptarse a varios propósitos; una gran casa familiar o dirigir un negocio.
Tiene un total de 6 dormitorios, 5 baños, 2 cocinas, mucha almacenaje, varias terrazas divididas en las 3 plantas,un sótano independiente. La villa tiene 425 m2 construidos.
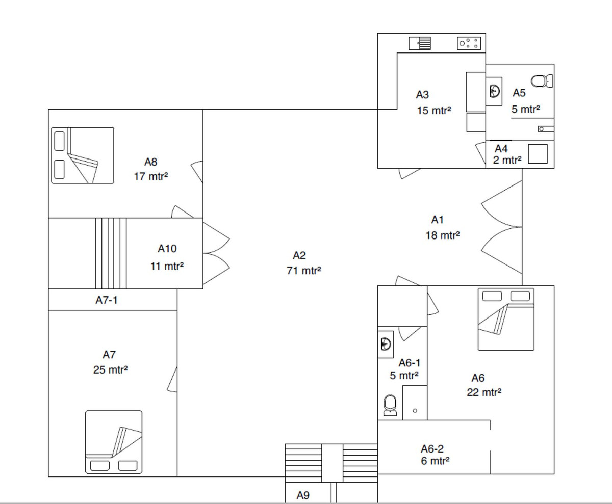
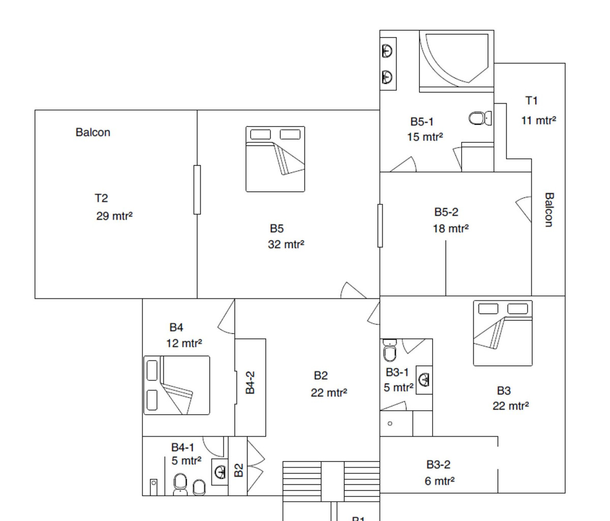
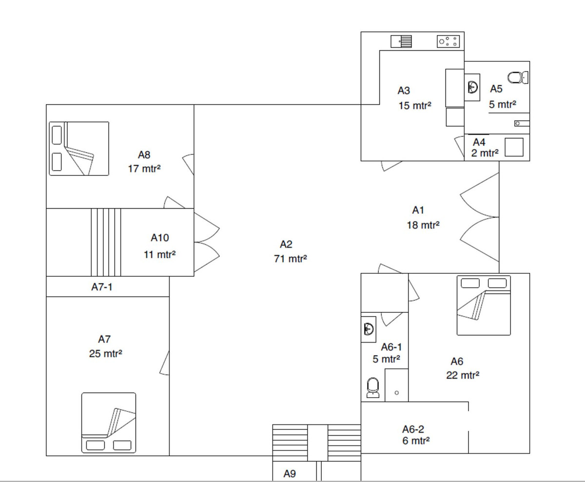
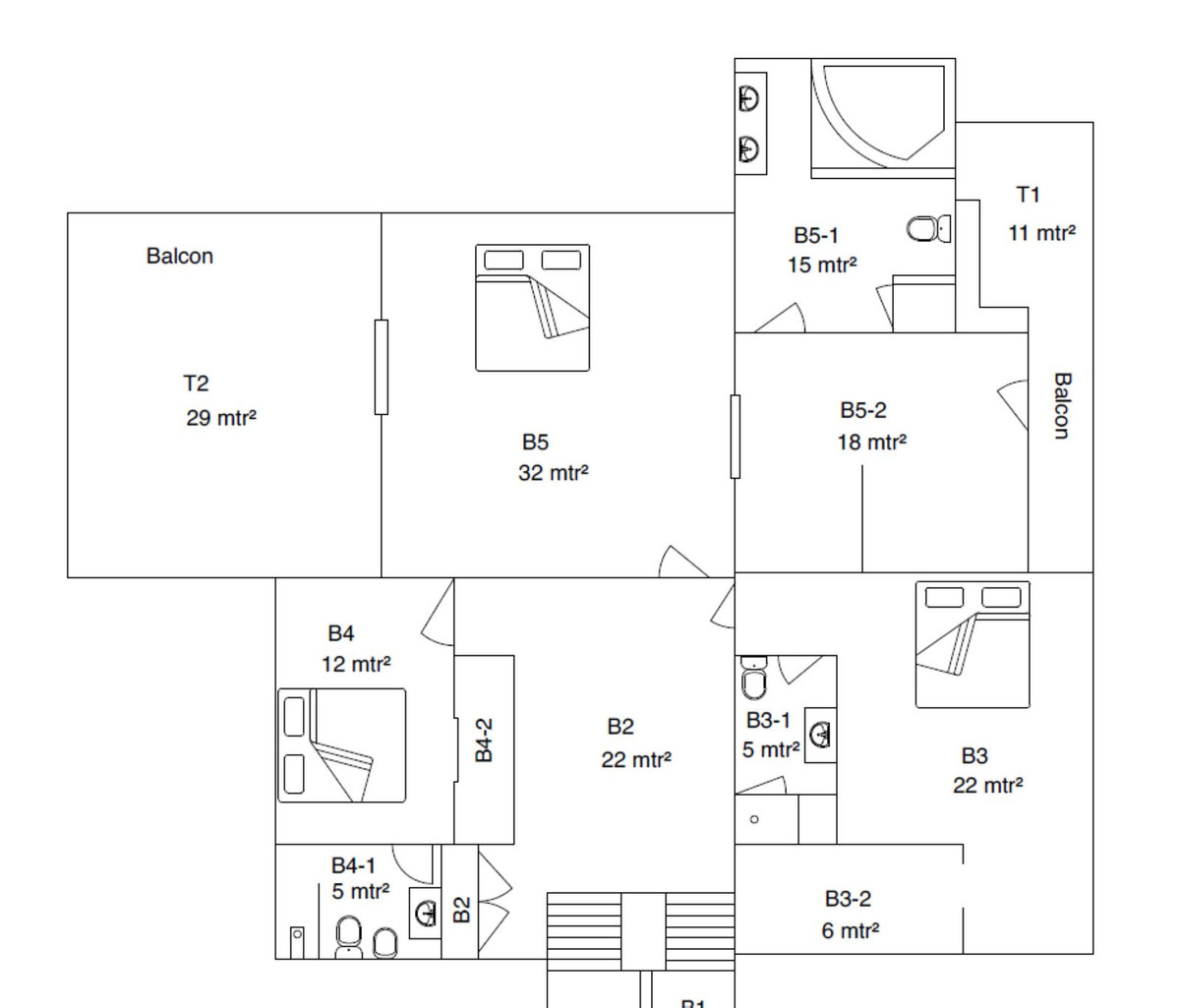
Se accede a la casa principal a través de una hermosa puerta antigua en el vestíbulo de entrada. A la derecha tiene una cocina de buen tamaño con área de lavandería / despensa y baño. En la luminosa sala de estar hay una chimenea que funciona bien, muchas ventanas, otra puerta vieja con acceso a la parte trasera de la propiedad donde están la piscina y área de entretenimiento. Desde el salón tiene una oficina / dormitorio en la parte trasera y a la izquierda tiene un dormitorio grande con armarios de pared a pared. Arriba tiene 3 dormitorios, todos con baños privados y balcones con excelentes vistas a los alrededores. El dormitorio principal ocupa la mitad del área de arriba, con una habitación grande, terraza, vestidor y un baño enorme con bañera de hidromasaje y ducha separada.
Hay una fantástica zona de entretenimiento junto a la piscina con una cocina exterior, un comedor y un aseo exterior.
Debajo de la casa hay un sótano independiente con gimnasio y área de fitness con aire acondicionado, una cocina con barra y mesa de billar, 2 dormitorios y un baño. Esto se puede convertir en una oficina o negocio propio para trabajar desde casa.
El tamaño de la parcela es de 1219 m2 y tiene una piscina de agua salada de buen tamaño. Los alrededores de la propiedad tiene un jardín bien cuidado con limoneros, naranjos, plátanos, nísperos, uvas y mucho estacionamiento.
Se encuentra en Alhaurin de la Torre junto al fantástico Jardin Oriental. Zona muy bonita y tranquila. A solo 5 minutos a pie de tiendas y bares ya solo 10 minutos en coche del aeropuerto internacional de Málaga y las playas de la Costa del Sol.e Málaga y de las playas de la Costa del Sol en el pueblo suburbano de Alhaurín de la Torre se encuentra esta villa.
















































































































































