Esta impresionante propiedad está situada en una ubicación increíble con vistas a la bahía de Málaga y a la Sierra de Mijas.
A menos de 4km del precioso pueblo de Alhaurín de la Torre, a menos de 5 minutos en coche del famoso campo de Lauro Golf, y a solo 20 minutos de la ciudad de Málaga y del aeropuerto, esta propiedad ofrece una vivienda familiar muy espaciosa o la oportunidad de montar un negocio de turismo rural.
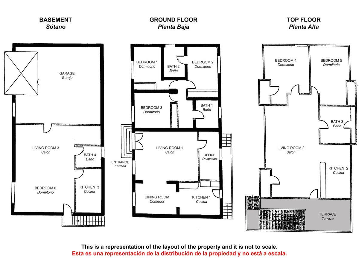
La casa se distribuye en 3 zonas independientes.
El acceso al apartamento de 2 dormitorios se realiza a través de una escalera exterior. El apartamento tiene un salón diáfano con cocina/comedor, baño compartido y una terraza privada desde donde se puede disfrutar de unas increíbles vistas al mar y a la montaña.
La planta baja cuenta con un amplio salón con chimenea, cocina-comedor, 4 dormitorios (el principal con baño en suite) y un baño de invitados. Un porche cubierto ofrece una estupenda zona de comedor adicional con vistas a la bahía de Málaga.
El sótano, de 155 m², tiene su propio acceso y ofrece una enorme zona de almacenamiento o una zona de estar independiente con baño. El garaje tiene espacio para 2 o 3 coches. Junto a la casa hay un mirador que, si fuera necesario, ofrecería más espacio para aparcar.
En la parte trasera de la casa hay una zona de terraza muy privada con piscina. El jardín ofrece intimidad, ya que no hay vecinos inmediatos y cuenta con vistas a la bahía de Málaga.




















































































