Exquisito proyecto de villa de seis dormitorios en Marbella Club Golf Resort con impresionantes vistas panorámicas al mar.
Este excepcional proyecto de villa de lujo a estrenar se encuentra en el prestigioso Marbella Club Golf Resort en Benahavís, Málaga. Con una ubicación privilegiada en la ladera de la montaña, la propiedad ofrece impresionantes vistas panorámicas a las montañas, al campo de golf y a los paisajes circundantes. Con una generosa superficie construida de 1.200 m² sobre una amplia parcela privada de 5.260 m², esta residencia está diseñada para quienes buscan el máximo confort, privacidad y sofisticación moderna.
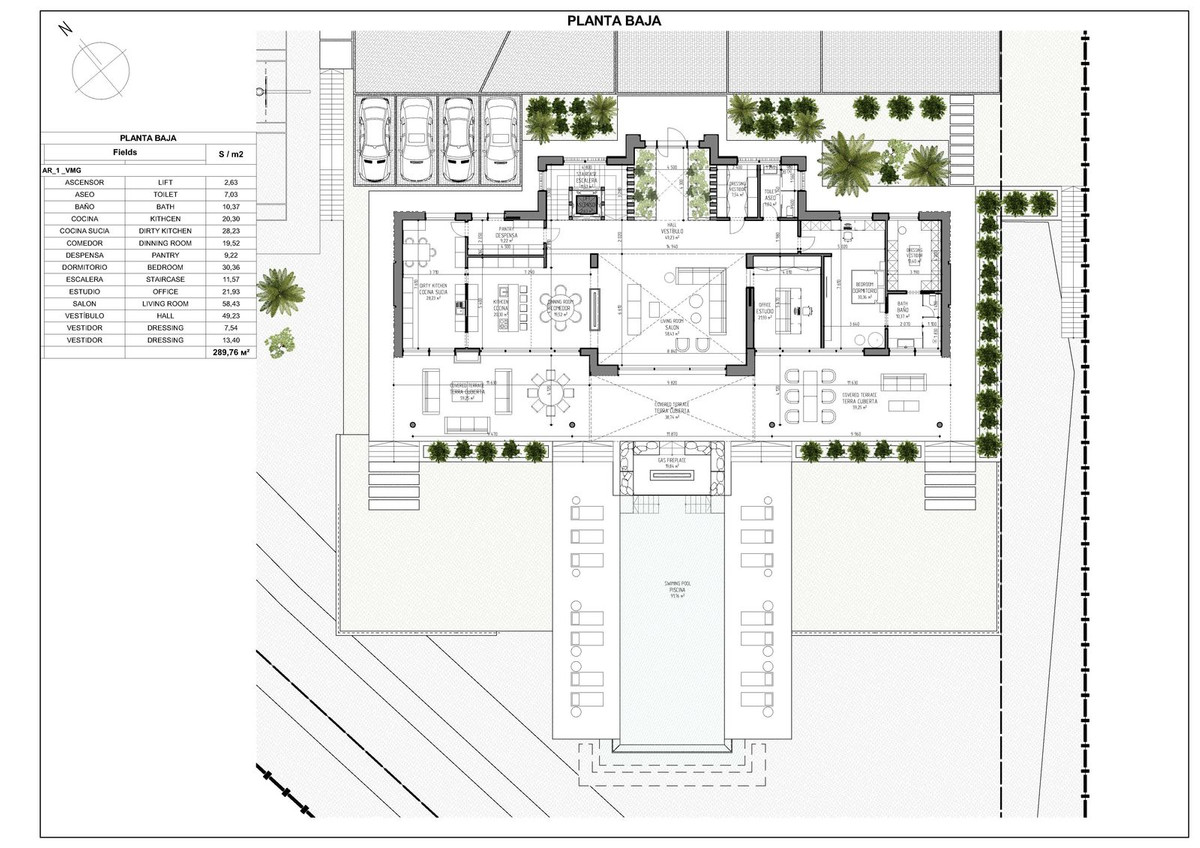
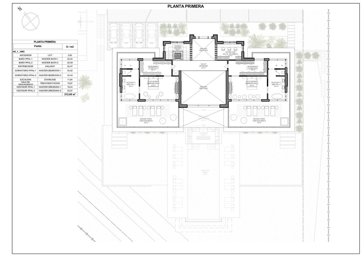
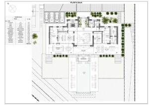
La villa cuenta con seis amplios dormitorios, cada uno con su propio baño en suite, así como un aseo de cortesía, garantizando un alojamiento cómodo para familiares e invitados. Los interiores están meticulosamente equipados con acabados de alta gama, incluyendo suelos de porcelanato, armarios empotrados y puertas de cristal, mientras que la cocina totalmente equipada y la cocina de servicio independiente ofrecen espacios culinarios versátiles. Las áreas de salón y comedor se abren tanto a terrazas cubiertas como descubiertas, integrando a la perfección los espacios interiores y exteriores. La propiedad es completamente accesible mediante ascensor y está equipada con tecnología domótica, calefacción por suelo radiante en toda la vivienda, unidades individuales de aire acondicionado y sistemas de aerotermia para garantizar el confort durante todo el año.
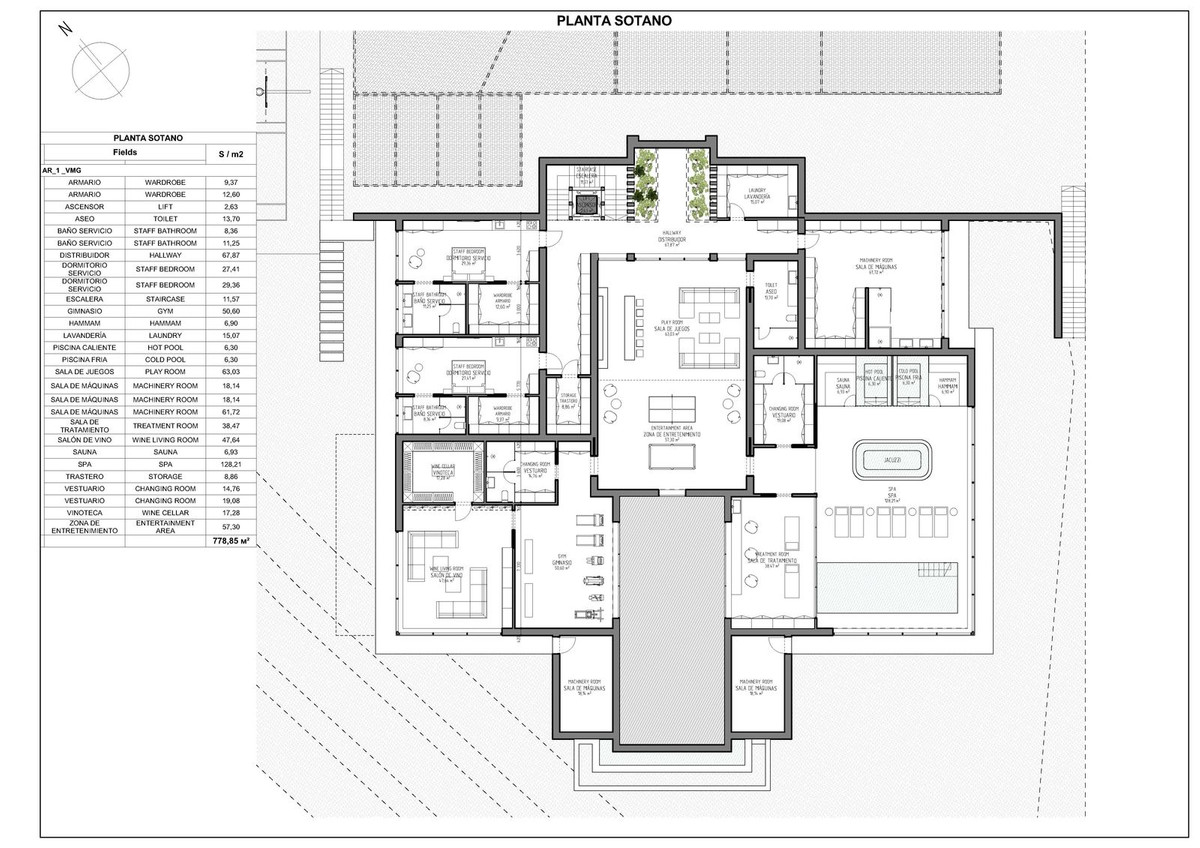
El entretenimiento y el bienestar son el eje central de esta villa, que dispone de piscina privada climatizada, gimnasio, sala de cine, bodega y sistema Dolby Stereo Surround. El sótano, trastero, cuarto de instalaciones y lavandería ofrecen soluciones prácticas para la vida diaria, mientras que el garaje privado y la urbanización cerrada con seguridad 24 horas, cámaras de vigilancia y videoportero garantizan la tranquilidad. La villa también es apta para mascotas y accesible para personas con movilidad reducida, adaptándose a diversas necesidades de estilo de vida.
Los residentes se benefician de la proximidad a una amplia gama de servicios, incluyendo tiendas, colegios, parques infantiles, la playa, el puerto deportivo y el vibrante centro urbano. La propiedad está idealmente situada para los amantes del golf, al encontrarse dentro de un reconocido resort de golf y cerca de otros campos adicionales. Con características como paneles solares, riego automático, depósito de agua, persianas eléctricas, televisión por satélite, internet de fibra óptica y un completo sistema de alarma, esta villa ejemplifica el lujo contemporáneo en una de las ubicaciones más codiciadas de la Costa del Sol.


































