Maravillosa villa ultramoderna de nueva construcción en la urbanización El Faro, Mijas Costa, a tan solo 200 metros de la playa.
Un lujo sin parangón en la zona. Espaciosa, brillante, con vistas ininterrumpidas al mar y mucha privacidad para deleitar al cliente más exigente.
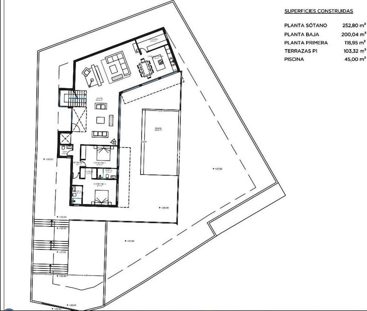
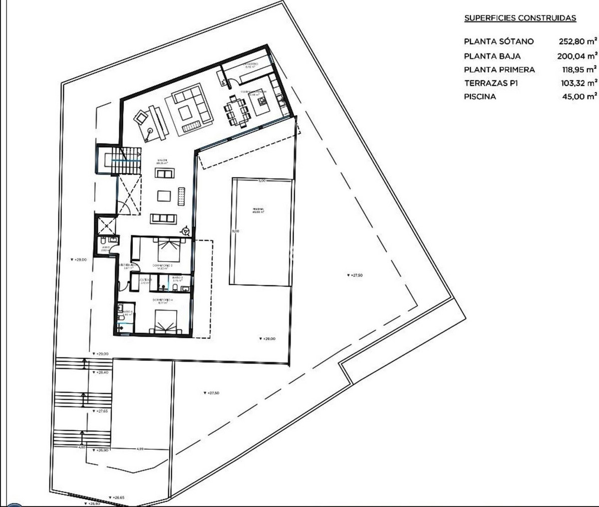
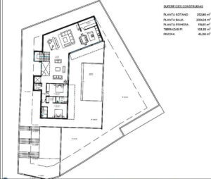
La propiedad consta de tres niveles unidos por escaleras y ascensor, que se distribuyen de la siguiente forma: planta principal con amplio salón-comedor con salida a su gran terraza, los jardines y la piscina, así como la zona de barbacoa. Cocina completa con lavadero independiente, un aseo y dos dormitorios ensuite, perfectos para invitados.
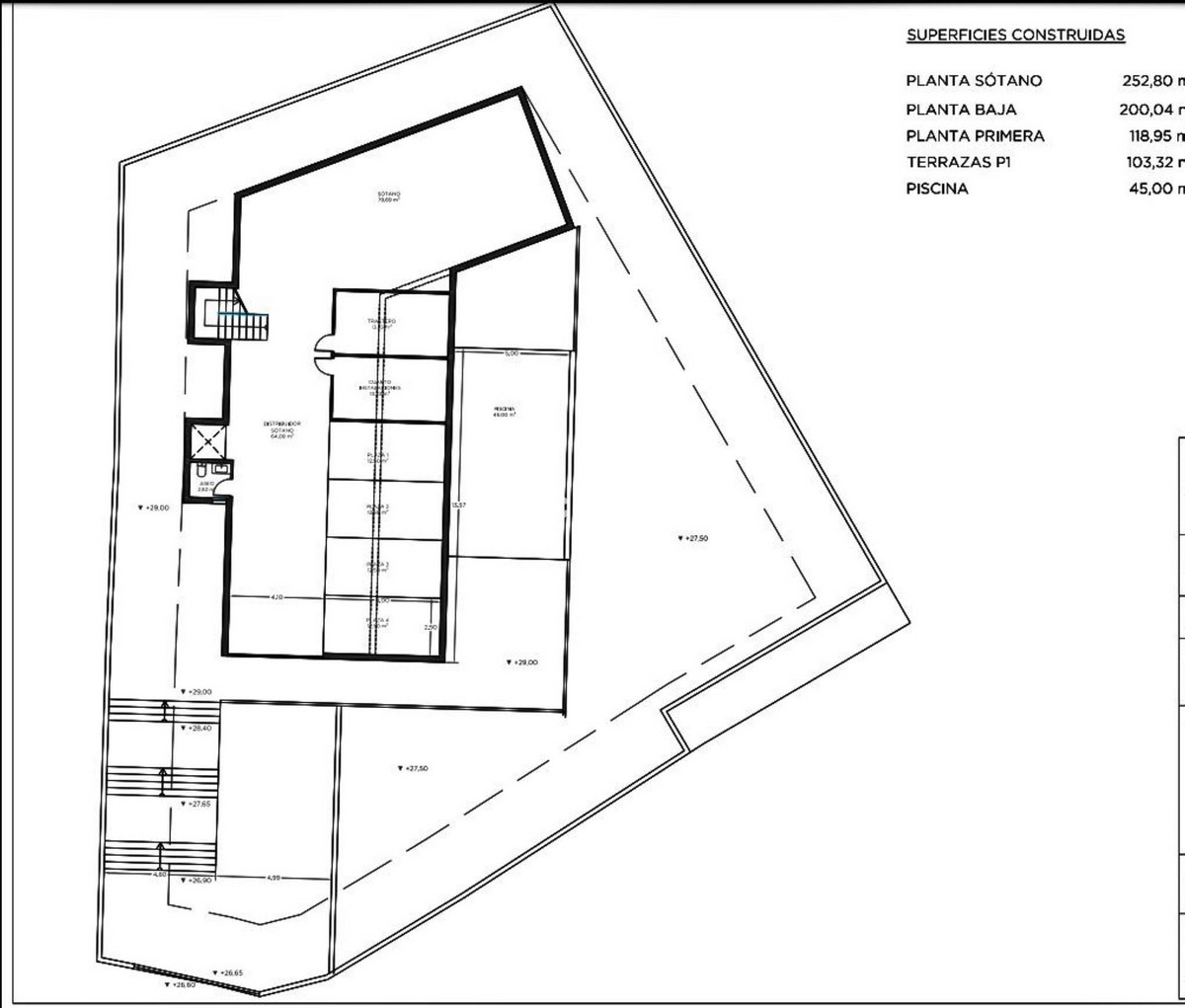
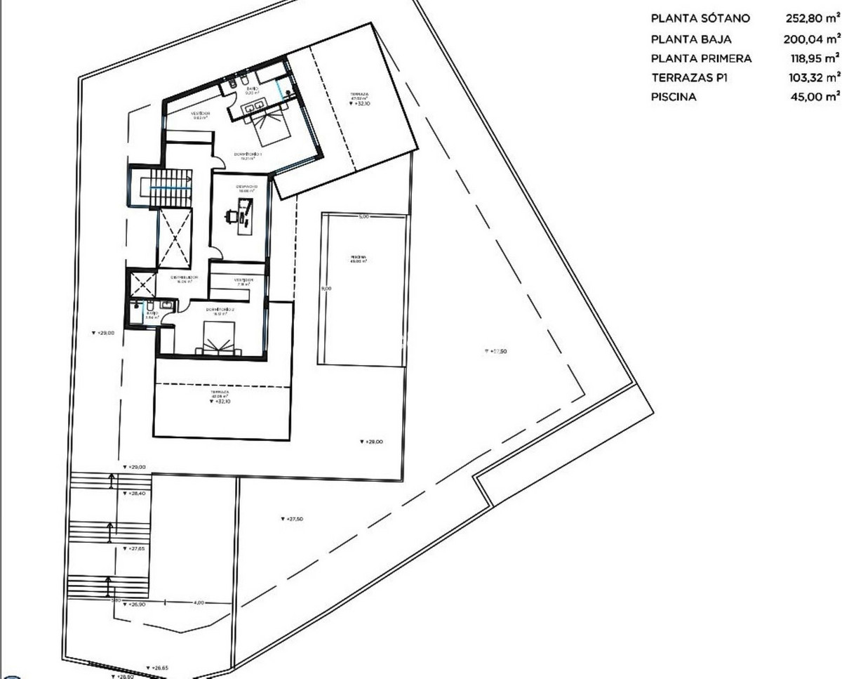
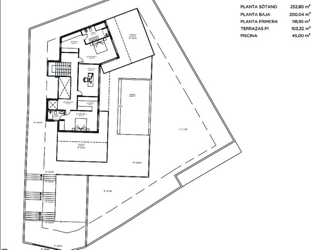
Primera planta con dos extensos dormitorios ensuite, despacho y otro baño completo. Además, terraza de más de 100 m2 con espectaculares vistas al mar y la montaña. Por último su gran sótano con más de 250 m2 acoge un espacioso parking para varios vehículos, sala de maquinaria,y una enorme zona aprovechable para crear un apartamento de invitados, cine, bodega, sala de juegos o aquello que desee su nuevo propietario.
































































































































